Przetargi nieruchomości: dolnośląskie

Lokalizacja

Organizator przetargu

Typ nieruchomości


Przetarg na obiekt / lokal

Dzierżoniów, Świdnicka

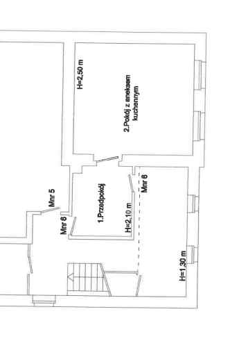
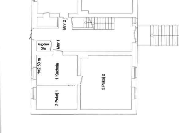
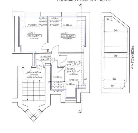
Burmistrz Dzierżoniowa ogłasza przetarg ustny nieograniczony na sprzedaż lokalu użytkowego nr 5,
o pow. użytkowej 1882,00 m2, położonego na II piętrze budynku przy ul. Świdnickiej
38 w Dzierżoniowie, kw lokalowa SW1D/00030716/3 wraz ze sprzedażą udziału w wys. 25,00 %, co
odpowiada 707,50 m2, w prawie użytkowania wieczystego gruntu działki nr 55/2 o pow. 2830 m2,
obręb Centrum, kw SW1D/00026673/8. Dodatkowo sprzedaży podlegają udziały procentowe
w użytkowaniu wieczystym sąsiednich 8 działek w ob...
Szczegóły przetargu

Cena wywoławcza:

2 677 000 zł

1 422 zł/m²

1 882 m²

Termin: 2026-05-27

Organizator przetargu:
Urząd Miasta w Dzierżoniowie
Przetarg na obiekt / lokal

Dzierżoniów, Świdnicka

Cena wywoławcza:

2 677 000 zł

1 422 zł/m²

1 882 m²

Burmistrz Dzierżoniowa ogłasza przetarg ustny nieograniczony na sprzedaż lokalu użytkowego nr 5,
o pow. użytkowej 1882,00 m2, położonego na II piętrze budynku przy ul. Świdnickiej
38 w Dzierżoniowie, kw lokalowa SW1D/00030716/3 wraz ze sprzedażą udziału w wys. 25,00 %, co
odpowiada 707,50 m2, w prawie użytkowania wieczystego gruntu działki nr 55/2 o pow. 2830 m2,
obręb Centrum, kw SW1D/00026673/8. Dodatkowo sprzedaży podlegają udziały procentowe
w użytkowaniu wieczystym sąsiednich 8 działek w ob...
Szczegóły przetargu

Termin: 2026-05-27

Organizator przetargu:
Urząd Miasta w Dzierżoniowie
Przetarg na mieszkanie

Plac Grunwaldzki, Wrocław, Michała Wrocławczyka

...odbędzie się w siedzibie Urzędu Miejskiego Wrocławia, pl. Nowy Targ 1-8 w sali nr 215, o godz. 10:00 dnia 27 maja 2026 r.
*** Wadium na w/w lokal uczestnik przetargu winien wpłacić najpóźniej do dnia 20 maja 2026 r. na konto Gminy Wrocław- Bank PKO BP S.A. nr 36 1020 5226 0000 6302 0417 7655. Datą dokonania wpłaty wadium jest data uznania rachunku bankowego Gminy.
*** Dowodem wniesienia wadium jest potwierdzenie z banku.
*** Pełną informację dotyczącą przetargu zawiera ogłoszenie wywieszone ...
Szczegóły przetargu

Cena wywoławcza:

1 166 000 zł

8 819 zł/m²

132 m² 4 pokoje

Termin: 2026-05-27

Organizator przetargu:
Urząd Miasta Wrocław
Przetarg na mieszkanie

Plac Grunwaldzki, Wrocław, Michała Wrocławczyka

Cena wywoławcza:

1 166 000 zł

8 819 zł/m²

132 m² 4 pokoje

...odbędzie się w siedzibie Urzędu Miejskiego Wrocławia, pl. Nowy Targ 1-8 w sali nr 215, o godz. 10:00 dnia 27 maja 2026 r.
*** Wadium na w/w lokal uczestnik przetargu winien wpłacić najpóźniej do dnia 20 maja 2026 r. na konto Gminy Wrocław- Bank PKO BP S.A. nr 36 1020 5226 0000 6302 0417 7655. Datą dokonania wpłaty wadium jest data uznania rachunku bankowego Gminy.
*** Dowodem wniesienia wadium jest potwierdzenie z banku.
*** Pełną informację dotyczącą przetargu zawiera ogłoszenie wywieszone ...
Szczegóły przetargu

Termin: 2026-05-27

Organizator przetargu:
Urząd Miasta Wrocław
Przetarg na mieszkanie

Stare Miasto, Wrocław, Szewska

...odbędzie się w siedzibie Urzędu Miejskiego Wrocławia, pl. Nowy Targ 1-8 w sali nr 215, o godz. 10:00 dnia 27 maja 2026 r.
*** Wadium na w/w lokal uczestnik przetargu winien wpłacić najpóźniej do dnia 20 maja 2026 r. na konto Gminy Wrocław- Bank PKO BP S.A. nr 36 1020 5226 0000 6302 0417 7655. Datą dokonania wpłaty wadium jest data uznania rachunku bankowego Gminy.
*** Dowodem wniesienia wadium jest potwierdzenie z banku.
*** Pełną informację dotyczącą przetargu zawiera ogłoszenie wywieszone ...
Szczegóły przetargu

Cena wywoławcza:

1 305 000 zł

7 095 zł/m²

184 m² 5 pokoi

Termin: 2026-05-27

Organizator przetargu:
Urząd Miasta Wrocław
Przetarg na mieszkanie

Stare Miasto, Wrocław, Szewska

Cena wywoławcza:

1 305 000 zł

7 095 zł/m²

184 m² 5 pokoi

...odbędzie się w siedzibie Urzędu Miejskiego Wrocławia, pl. Nowy Targ 1-8 w sali nr 215, o godz. 10:00 dnia 27 maja 2026 r.
*** Wadium na w/w lokal uczestnik przetargu winien wpłacić najpóźniej do dnia 20 maja 2026 r. na konto Gminy Wrocław- Bank PKO BP S.A. nr 36 1020 5226 0000 6302 0417 7655. Datą dokonania wpłaty wadium jest data uznania rachunku bankowego Gminy.
*** Dowodem wniesienia wadium jest potwierdzenie z banku.
*** Pełną informację dotyczącą przetargu zawiera ogłoszenie wywieszone ...
Szczegóły przetargu

Termin: 2026-05-27

Organizator przetargu:
Urząd Miasta Wrocław
Przetarg na działkę

Wałbrzych, Osiedle Stare

...odbędzie się w dniu 27.05.2026 r. w Urzędzie Miejskim w Wałbrzychu, ul. Kopernika 2, sala nr 107 o godz. 9:30.

Uczestnicy przetargu zobowiązani są posiadać w dniu przetargu:

*** ważny dokument tożsamości ze zdjęciem (dowód osobisty, paszport);
*** w przypadku osób fizycznych zamierzających nabyć nieruchomość w związku z prowadzoną działalnością gospodarczą–aktualne zaświadczenie o wpisie w Centralnej Ewidencji i Informacji o Działalności Gospodarczej RP;
*** w przypadku osób prawnych oraz ...
Szczegóły przetargu

Cena wywoławcza:

100 000 zł

100,00 zł/m²

1 000 m²

Termin: 2026-05-27

Organizator przetargu:
Urząd Miejski w Wałbrzychu
Przetarg na działkę

Wałbrzych, Osiedle Stare

Cena wywoławcza:

100 000 zł

100,00 zł/m²

1 000 m²

...odbędzie się w dniu 27.05.2026 r. w Urzędzie Miejskim w Wałbrzychu, ul. Kopernika 2, sala nr 107 o godz. 9:30.

Uczestnicy przetargu zobowiązani są posiadać w dniu przetargu:

*** ważny dokument tożsamości ze zdjęciem (dowód osobisty, paszport);
*** w przypadku osób fizycznych zamierzających nabyć nieruchomość w związku z prowadzoną działalnością gospodarczą–aktualne zaświadczenie o wpisie w Centralnej Ewidencji i Informacji o Działalności Gospodarczej RP;
*** w przypadku osób prawnych oraz ...
Szczegóły przetargu

Termin: 2026-05-27

Organizator przetargu:
Urząd Miejski w Wałbrzychu
Przetarg na działkę

Wałbrzych, Osiedle Stare

...odbędzie się w dniu 27.05.2026 r. w Urzędzie Miejskim w Wałbrzychu, ul. Kopernika 2, sala nr 107 o godz. 9:15.

Uczestnicy przetargu zobowiązani są posiadać w dniu przetargu:

*** ważny dokument tożsamości ze zdjęciem (dowód osobisty, paszport);
*** w przypadku osób fizycznych zamierzających nabyć nieruchomość w związku z prowadzoną działalnością gospodarczą–aktualne zaświadczenie o wpisie w Centralnej Ewidencji i Informacji o Działalności Gospodarczej RP;
*** w przypadku osób prawnych oraz ...
Szczegóły przetargu

Cena wywoławcza:

100 000 zł

100,00 zł/m²

1 000 m²

Termin: 2026-05-27

Organizator przetargu:
Urząd Miejski w Wałbrzychu
Przetarg na działkę

Wałbrzych, Osiedle Stare

Cena wywoławcza:

100 000 zł

100,00 zł/m²

1 000 m²

...odbędzie się w dniu 27.05.2026 r. w Urzędzie Miejskim w Wałbrzychu, ul. Kopernika 2, sala nr 107 o godz. 9:15.

Uczestnicy przetargu zobowiązani są posiadać w dniu przetargu:

*** ważny dokument tożsamości ze zdjęciem (dowód osobisty, paszport);
*** w przypadku osób fizycznych zamierzających nabyć nieruchomość w związku z prowadzoną działalnością gospodarczą–aktualne zaświadczenie o wpisie w Centralnej Ewidencji i Informacji o Działalności Gospodarczej RP;
*** w przypadku osób prawnych oraz ...
Szczegóły przetargu

Termin: 2026-05-27

Organizator przetargu:
Urząd Miejski w Wałbrzychu
Przetarg na działkę

Wałbrzych, Prymasa Stefana Wyszyńskiego

...odbędzie się w dniu 27.05.2026 r. w Urzędzie Miejskim w Wałbrzychu, ul. Kopernika 2, sala nr 107 o godz. 11:15.

Uczestnicy przetargu zobowiązani są posiadać w dniu przetargu :

*** ważny dokument tożsamości ze zdjęciem (dowód osobisty, paszport);
*** w przypadku osób fizycznych zamierzających nabyć nieruchomość w związku z prowadzoną działalnością gospodarczą–aktualne zaświadczenie o wpisie w Centralnej Ewidencji i Informacji o Działalności Gospodarczej RP;
*** w przypadku osób prawnych ora...
Szczegóły przetargu

Cena wywoławcza:

380 000 zł

149 zł/m²

2 548 m²

Termin: 2026-05-27

Organizator przetargu:
Urząd Miejski w Wałbrzychu
Przetarg na działkę

Wałbrzych, Prymasa Stefana Wyszyńskiego

Cena wywoławcza:

380 000 zł

149 zł/m²

2 548 m²

...odbędzie się w dniu 27.05.2026 r. w Urzędzie Miejskim w Wałbrzychu, ul. Kopernika 2, sala nr 107 o godz. 11:15.

Uczestnicy przetargu zobowiązani są posiadać w dniu przetargu :

*** ważny dokument tożsamości ze zdjęciem (dowód osobisty, paszport);
*** w przypadku osób fizycznych zamierzających nabyć nieruchomość w związku z prowadzoną działalnością gospodarczą–aktualne zaświadczenie o wpisie w Centralnej Ewidencji i Informacji o Działalności Gospodarczej RP;
*** w przypadku osób prawnych ora...
Szczegóły przetargu

Termin: 2026-05-27

Organizator przetargu:
Urząd Miejski w Wałbrzychu
Przetarg na działkę

Stary Zdrój, Wałbrzych, Osiedle Stare

...odbędzie się w dniu 27.05.2026 r. w Urzędzie Miejskim w Wałbrzychu, ul. Kopernika 2, sala nr 107 o godz. 9:00.

Uczestnicy przetargu zobowiązani są posiadać w dniu przetargu:

*** ważny dokument tożsamości ze zdjęciem (dowód osobisty, paszport);
*** w przypadku osób fizycznych zamierzających nabyć nieruchomość w związku z prowadzoną działalnością gospodarczą–aktualne zaświadczenie o wpisie w Centralnej Ewidencji i Informacji o Działalności Gospodarczej RP;
*** w przypadku osób prawnych oraz ...
Szczegóły przetargu

Cena wywoławcza:

120 000 zł

105 zł/m²

1 147 m²

Termin: 2026-05-27

Organizator przetargu:
Urząd Miejski w Wałbrzychu
Przetarg na działkę

Stary Zdrój, Wałbrzych, Osiedle Stare

Cena wywoławcza:

120 000 zł

105 zł/m²

1 147 m²

...odbędzie się w dniu 27.05.2026 r. w Urzędzie Miejskim w Wałbrzychu, ul. Kopernika 2, sala nr 107 o godz. 9:00.

Uczestnicy przetargu zobowiązani są posiadać w dniu przetargu:

*** ważny dokument tożsamości ze zdjęciem (dowód osobisty, paszport);
*** w przypadku osób fizycznych zamierzających nabyć nieruchomość w związku z prowadzoną działalnością gospodarczą–aktualne zaświadczenie o wpisie w Centralnej Ewidencji i Informacji o Działalności Gospodarczej RP;
*** w przypadku osób prawnych oraz ...
Szczegóły przetargu

Termin: 2026-05-27

Organizator przetargu:
Urząd Miejski w Wałbrzychu
Przetarg na obiekt / lokal

Rusinowa, Wałbrzych, Noworudzka

...odbędzie się w dniu 27.05.2026 r. w Urzędzie Miejskim w Wałbrzychu, ul. Kopernika 2, sala nr 107 o godz. 10:45.

Nieruchomość można obejrzeć w terminie uzgodnionym z pracownikiem MZB BOK Podgórze w Wałbrzychu ul. Jagielońska 7-9 tel. 74 842 34 44.

Uczestnicy przetargu zobowiązani są posiadać w dniu przetargu:

*** ważny dokument tożsamości ze zdjęciem (dowód osobisty, paszport);
*** w przypadku osób fizycznych zamierzających nabyć nieruchomość w związku z prowadzoną działalnością gospodarcz...
Szczegóły przetargu

Cena wywoławcza:

400 000 zł

802 zł/m²

499 m²

Termin: 2026-05-27

Organizator przetargu:
Urząd Miejski w Wałbrzychu
Przetarg na obiekt / lokal

Rusinowa, Wałbrzych, Noworudzka

Cena wywoławcza:

400 000 zł

802 zł/m²

499 m²

...odbędzie się w dniu 27.05.2026 r. w Urzędzie Miejskim w Wałbrzychu, ul. Kopernika 2, sala nr 107 o godz. 10:45.

Nieruchomość można obejrzeć w terminie uzgodnionym z pracownikiem MZB BOK Podgórze w Wałbrzychu ul. Jagielońska 7-9 tel. 74 842 34 44.

Uczestnicy przetargu zobowiązani są posiadać w dniu przetargu:

*** ważny dokument tożsamości ze zdjęciem (dowód osobisty, paszport);
*** w przypadku osób fizycznych zamierzających nabyć nieruchomość w związku z prowadzoną działalnością gospodarcz...
Szczegóły przetargu

Termin: 2026-05-27

Organizator przetargu:
Urząd Miejski w Wałbrzychu
Przetarg na działkę

Piaskowa Góra, Wałbrzych, Władysława Orkana

...odbędzie się w dniu 27.05.2026 r. w Urzędzie Miejskim w Wałbrzychu, ul. Kopernika 2, sala nr 107 o godz. 10:00.

Uczestnicy przetargu zobowiązani są posiadać w dniu przetargu :

*** ważny dokument tożsamości ze zdjęciem (dowód osobisty, paszport);
*** w przypadku osób fizycznych zamierzających nabyć nieruchomość w związku z prowadzoną działalnością gospodarczą–aktualne zaświadczenie o wpisie w Centralnej Ewidencji i Informacji o Działalności Gospodarczej RP;
*** w przypadku osób prawnych ora...
Szczegóły przetargu

Cena wywoławcza:

320 000 zł

131 zł/m²

2 440 m²

Termin: 2026-05-27

Organizator przetargu:
Urząd Miejski w Wałbrzychu
Przetarg na działkę

Piaskowa Góra, Wałbrzych, Władysława Orkana

Cena wywoławcza:

320 000 zł

131 zł/m²

2 440 m²

...odbędzie się w dniu 27.05.2026 r. w Urzędzie Miejskim w Wałbrzychu, ul. Kopernika 2, sala nr 107 o godz. 10:00.

Uczestnicy przetargu zobowiązani są posiadać w dniu przetargu :

*** ważny dokument tożsamości ze zdjęciem (dowód osobisty, paszport);
*** w przypadku osób fizycznych zamierzających nabyć nieruchomość w związku z prowadzoną działalnością gospodarczą–aktualne zaświadczenie o wpisie w Centralnej Ewidencji i Informacji o Działalności Gospodarczej RP;
*** w przypadku osób prawnych ora...
Szczegóły przetargu

Termin: 2026-05-27

Organizator przetargu:
Urząd Miejski w Wałbrzychu
Przetarg na działkę

Stary Zdrój, Wałbrzych, Osiedle Stare

...odbędzie się w dniu 27.05.2026 r. w Urzędzie Miejskim w Wałbrzychu, ul. Kopernika 2, sala nr 107 o godz. 9:45.

Uczestnicy przetargu zobowiązani są posiadać w dniu przetargu:

*** ważny dokument tożsamości ze zdjęciem (dowód osobisty, paszport);
*** w przypadku osób fizycznych zamierzających nabyć nieruchomość w związku z prowadzoną działalnością gospodarczą–aktualne zaświadczenie o wpisie w Centralnej Ewidencji i Informacji o Działalności Gospodarczej RP;
*** w przypadku osób prawnych oraz ...
Szczegóły przetargu

Cena wywoławcza:

102 000 zł

97,70 zł/m²

1 044 m²

Termin: 2026-05-27

Organizator przetargu:
Urząd Miejski w Wałbrzychu
Przetarg na działkę

Stary Zdrój, Wałbrzych, Osiedle Stare

Cena wywoławcza:

102 000 zł

97,70 zł/m²

1 044 m²

...odbędzie się w dniu 27.05.2026 r. w Urzędzie Miejskim w Wałbrzychu, ul. Kopernika 2, sala nr 107 o godz. 9:45.

Uczestnicy przetargu zobowiązani są posiadać w dniu przetargu:

*** ważny dokument tożsamości ze zdjęciem (dowód osobisty, paszport);
*** w przypadku osób fizycznych zamierzających nabyć nieruchomość w związku z prowadzoną działalnością gospodarczą–aktualne zaświadczenie o wpisie w Centralnej Ewidencji i Informacji o Działalności Gospodarczej RP;
*** w przypadku osób prawnych oraz ...
Szczegóły przetargu

Termin: 2026-05-27

Organizator przetargu:
Urząd Miejski w Wałbrzychu
Przetarg na obiekt / lokal

Śródmieście, Wałbrzych, Jana Matejki

...odbędzie się w dniu 27.05.2026 r. w Urzędzie Miejskim w Wałbrzychu, ul. Kopernika 2, sala nr 107 o godz. 11:00.

Uczestnicy przetargu zobowiązani są posiadać w dniu przetargu:

*** ważny dokument tożsamości ze zdjęciem (dowód osobisty, paszport);
*** w przypadku osób fizycznych zamierzających nabyć nieruchomość w związku z prowadzoną działalnością gospodarczą–aktualne zaświadczenie o wpisie w Centralnej Ewidencji i Informacji o Działalności Gospodarczej RP;
*** w przypadku osób prawnych oraz...
Szczegóły przetargu

Cena wywoławcza:

1 800 000 zł

2 980 zł/m²

604 m²

Termin: 2026-05-27

Organizator przetargu:
Urząd Miejski w Wałbrzychu
Przetarg na obiekt / lokal

Śródmieście, Wałbrzych, Jana Matejki

Cena wywoławcza:

1 800 000 zł

2 980 zł/m²

604 m²

...odbędzie się w dniu 27.05.2026 r. w Urzędzie Miejskim w Wałbrzychu, ul. Kopernika 2, sala nr 107 o godz. 11:00.

Uczestnicy przetargu zobowiązani są posiadać w dniu przetargu:

*** ważny dokument tożsamości ze zdjęciem (dowód osobisty, paszport);
*** w przypadku osób fizycznych zamierzających nabyć nieruchomość w związku z prowadzoną działalnością gospodarczą–aktualne zaświadczenie o wpisie w Centralnej Ewidencji i Informacji o Działalności Gospodarczej RP;
*** w przypadku osób prawnych oraz...
Szczegóły przetargu

Termin: 2026-05-27

Organizator przetargu:
Urząd Miejski w Wałbrzychu
Przetarg na mieszkanie

Dzierżoniów, Nowowiejska

Ogłoszenie nr 25/PN/2026

Burmistrz Dzierżoniowa ogłasza przetarg ustny nieograniczony na sprzedaż lokalu mieszkalnego nr 2 o pow. użytkowej 24,82 m2, położonego na parterze budynku przy ul. Nowowiejskiej 54 w Dzierżoniowie, wraz ze sprzedażą ułamkowej części działki gruntu nr 537 obręb Centrum, o pow. 140 m2, kw SW1D/00010569/, kw lokalowa SW1D/00039825/3.

Nr

2

Pow.

lokalu

[m2]

24,82

Wartość

lokalu

[zł]

38 820,00

Udział

[%]

10,61

Wartość udziału w gruncie

[zł]

3 180,00

Cena wyw...
Szczegóły przetargu

Cena wywoławcza:

42 000 zł

1 750 zł/m²

24 m² 1 pokój

Termin: 2026-05-27

Organizator przetargu:
Urząd Miasta w Dzierżoniowie
Przetarg na mieszkanie

Dzierżoniów, Nowowiejska

Cena wywoławcza:

42 000 zł

1 750 zł/m²

24 m² 1 pokój

Ogłoszenie nr 25/PN/2026

Burmistrz Dzierżoniowa ogłasza przetarg ustny nieograniczony na sprzedaż lokalu mieszkalnego nr 2 o pow. użytkowej 24,82 m2, położonego na parterze budynku przy ul. Nowowiejskiej 54 w Dzierżoniowie, wraz ze sprzedażą ułamkowej części działki gruntu nr 537 obręb Centrum, o pow. 140 m2, kw SW1D/00010569/, kw lokalowa SW1D/00039825/3.

Nr

2

Pow.

lokalu

[m2]

24,82

Wartość

lokalu

[zł]

38 820,00

Udział

[%]

10,61

Wartość udziału w gruncie

[zł]

3 180,00

Cena wyw...
Szczegóły przetargu

Termin: 2026-05-27

Organizator przetargu:
Urząd Miasta w Dzierżoniowie
Przetarg na mieszkanie

Dzierżoniów, Przedmieście

Ogłoszenie nr 26/PN/2026

Burmistrz Dzierżoniowa ogłasza przetarg ustny nieograniczony na sprzedaż lokalu mieszkalnego nr 3 o pow. użytkowej 22,17 m2, położonego na I piętrze budynku przy ul. Przedmieście 2 w Dzierżoniowie, a także przynależnych do niego zlokalizowanych na II piętrze (poddaszu): pomieszczenia gospodarczego o pow. 11,82 m2 oraz wc o pow. 4,25 m2. Łączna powierzchni a użytkowa lokalu wraz z pomieszczeniami przynależnymi wynosi 38,24 m2. W z lokalem sprzedaży podlega ułamkowa część...
Szczegóły przetargu

Cena wywoławcza:

72 000 zł

1 895 zł/m²

38 m² 1 pokój

Termin: 2026-05-27

Organizator przetargu:
Urząd Miasta w Dzierżoniowie
Przetarg na mieszkanie

Dzierżoniów, Przedmieście

Cena wywoławcza:

72 000 zł

1 895 zł/m²

38 m² 1 pokój

Ogłoszenie nr 26/PN/2026

Burmistrz Dzierżoniowa ogłasza przetarg ustny nieograniczony na sprzedaż lokalu mieszkalnego nr 3 o pow. użytkowej 22,17 m2, położonego na I piętrze budynku przy ul. Przedmieście 2 w Dzierżoniowie, a także przynależnych do niego zlokalizowanych na II piętrze (poddaszu): pomieszczenia gospodarczego o pow. 11,82 m2 oraz wc o pow. 4,25 m2. Łączna powierzchni a użytkowa lokalu wraz z pomieszczeniami przynależnymi wynosi 38,24 m2. W z lokalem sprzedaży podlega ułamkowa część...
Szczegóły przetargu

Termin: 2026-05-27

Organizator przetargu:
Urząd Miasta w Dzierżoniowie
Przetarg na mieszkanie

Dzierżoniów, Spacerowa

Ogłoszenie nr 27/PN/2026

Burmistrz Dzierżoniowa ogłasza przetarg ustny nieograniczony na sprzedaż lokalu mieszkalnego nr 2 o pow. użytkowej 37,86 m2, położonego na parterze budynku przy ul. Spacerowej 15 w Dzierżoniowie, wraz ze sprzedażą ułamkowej części działki gruntu nr 260/30 obręb Centrum o pow. 176 m2, obręb Centrum, kw SW1D/00018585/5.

Nr

2

Pow.

lokalu

[m2]

37,86

Wartość

lokalu

[zł]

100 694,00

Udział

[%]

19,09

Wartość udziału w gruncie

[zł]

9 306,00

Cena wywoławcza nieru...
Szczegóły przetargu

Cena wywoławcza:

110 000 zł

2 973 zł/m²

37 m² 1 pokój

Termin: 2026-05-27

Organizator przetargu:
Urząd Miasta w Dzierżoniowie
Przetarg na mieszkanie

Dzierżoniów, Spacerowa

Cena wywoławcza:

110 000 zł

2 973 zł/m²

37 m² 1 pokój

Ogłoszenie nr 27/PN/2026

Burmistrz Dzierżoniowa ogłasza przetarg ustny nieograniczony na sprzedaż lokalu mieszkalnego nr 2 o pow. użytkowej 37,86 m2, położonego na parterze budynku przy ul. Spacerowej 15 w Dzierżoniowie, wraz ze sprzedażą ułamkowej części działki gruntu nr 260/30 obręb Centrum o pow. 176 m2, obręb Centrum, kw SW1D/00018585/5.

Nr

2

Pow.

lokalu

[m2]

37,86

Wartość

lokalu

[zł]

100 694,00

Udział

[%]

19,09

Wartość udziału w gruncie

[zł]

9 306,00

Cena wywoławcza nieru...
Szczegóły przetargu

Termin: 2026-05-27

Organizator przetargu:
Urząd Miasta w Dzierżoniowie
Przetarg na mieszkanie

Boguszów-Gorce, Tadeusza Kościuszki

...odbędzie się dnia 27 maja 2026 r. w siedzibie Urzędu Miejskiego w Boguszowie – Gorcach, Pl. Odrodzenia 1, w Sali Ślubów mieszczącej się na
parterze budynku.
Przetarg będzie ważny bez względu na liczbę uczestników, jeżeli chociaż jeden zakwalifikowany uczestnik zaoferuje cenę wyższą od ceny wywoławczej
o kwotę przynajmniej minimalnego postąpienia. O wysokości postąpienia decydują uczestnicy przetargu z tym, że postąpienie nie może wynosić mniej niż 1% ceny
wywoławczej, z zaokrągleniem w górę ...
Szczegóły przetargu

Cena wywoławcza:

95 000 zł

1 536 zł/m²

62 m² 2 pokoje

Termin: 2026-05-27

Organizator przetargu:
Urząd Miasta Boguszów Gorce
Przetarg na mieszkanie

Boguszów-Gorce, Tadeusza Kościuszki

Cena wywoławcza:

95 000 zł

1 536 zł/m²

62 m² 2 pokoje

...odbędzie się dnia 27 maja 2026 r. w siedzibie Urzędu Miejskiego w Boguszowie – Gorcach, Pl. Odrodzenia 1, w Sali Ślubów mieszczącej się na
parterze budynku.
Przetarg będzie ważny bez względu na liczbę uczestników, jeżeli chociaż jeden zakwalifikowany uczestnik zaoferuje cenę wyższą od ceny wywoławczej
o kwotę przynajmniej minimalnego postąpienia. O wysokości postąpienia decydują uczestnicy przetargu z tym, że postąpienie nie może wynosić mniej niż 1% ceny
wywoławczej, z zaokrągleniem w górę ...
Szczegóły przetargu

Termin: 2026-05-27

Organizator przetargu:
Urząd Miasta Boguszów Gorce
1                          100
- Najnowsze obwieszczenia o przetargach i licytacjach nieruchomości z 5003 źródeł
- Ogłoszenia bezpośrednie i agencyjne z 52 portali nieruchomości