Przetargi nieruchomości: Wrocław, Krzyki

Lokalizacja

Organizator przetargu

Typ nieruchomości


Przetarg na mieszkanie

Wrocław, Gaj, Orzechowa

PKP S.A. Oddział Gospodarowania Nieruchomościami we Wrocławiu przedstawia propozycję sprzedaży lokalu mieszkalnego we Wrocławiu przy ul. Orzechowej 23. Lokal mieszkalny nr 19 o powierzchni 62,50 m2 zlokalizowany jest 7 kondygnacji (VI piętro) budynku mieszkalnego i składa się z:
- pokoju o pow. 17,80 m2
- pokoju o pow. 11,40 m2
- pokoju o pow. 11,10 m2
- kuchni o pow. 7,20 m2
- przedpokoju o pow. 10,80 m2
- łazienki o pow. 2,90 m2
- WC o pow. 1,30 m2

Dodatkowo do lokalu przynależy piwn...
Szczegóły przetargu

Cena wywoławcza:

595 000 zł

9 520 zł/m 2

63 m2 3 pokoje

Termin: 2026-04-16

Organizator przetargu:
PKP
Przetarg na mieszkanie

Wrocław, Gaj, Orzechowa

Cena wywoławcza:

595 000 zł

9 520 zł/m 2

63 m2 3 pokoje

PKP S.A. Oddział Gospodarowania Nieruchomościami we Wrocławiu przedstawia propozycję sprzedaży lokalu mieszkalnego we Wrocławiu przy ul. Orzechowej 23. Lokal mieszkalny nr 19 o powierzchni 62,50 m2 zlokalizowany jest 7 kondygnacji (VI piętro) budynku mieszkalnego i składa się z:
- pokoju o pow. 17,80 m2
- pokoju o pow. 11,40 m2
- pokoju o pow. 11,10 m2
- kuchni o pow. 7,20 m2
- przedpokoju o pow. 10,80 m2
- łazienki o pow. 2,90 m2
- WC o pow. 1,30 m2

Dodatkowo do lokalu przynależy piwn...
Szczegóły przetargu

Termin: 2026-04-16

Organizator przetargu:
PKP
Przetarg na mieszkanie

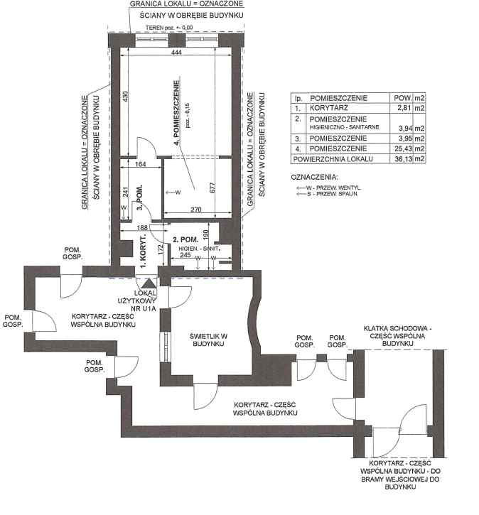
Wrocław, Krzyki, Skarbowców

...odbędzie się w siedzibie Urzędu Miejskiego Wrocławia, pl. Nowy Targ 1-8 w sali nr 215, o godz. 10:00 dnia 15 kwietnia 2026 r.
*** Wadium na w/w lokal uczestnik przetargu winien wpłacić najpóźniej do dnia 8 kwietnia 2026 r. na konto Gminy Wrocław- Bank PKO BP S.A.
nr 36 1020 5226 0000 6302 0417 7655. Datą dokonania wpłaty wadium jest data uznania rachunku bankowego Gminy.
*** Dowodem wniesienia wadium jest potwierdzenie z banku.
*** Pełną informację dotyczącą przetargu zawiera ogłosze...
Szczegóły przetargu

Cena wywoławcza:

460 000 zł

5 724 zł/m 2

80 m2 3 pokoje

Termin: 2026-04-15

Organizator przetargu:
Urząd Miasta Wrocław
Przetarg na mieszkanie

Wrocław, Krzyki, Skarbowców

Cena wywoławcza:

460 000 zł

5 724 zł/m 2

80 m2 3 pokoje

...odbędzie się w siedzibie Urzędu Miejskiego Wrocławia, pl. Nowy Targ 1-8 w sali nr 215, o godz. 10:00 dnia 15 kwietnia 2026 r.
*** Wadium na w/w lokal uczestnik przetargu winien wpłacić najpóźniej do dnia 8 kwietnia 2026 r. na konto Gminy Wrocław- Bank PKO BP S.A.
nr 36 1020 5226 0000 6302 0417 7655. Datą dokonania wpłaty wadium jest data uznania rachunku bankowego Gminy.
*** Dowodem wniesienia wadium jest potwierdzenie z banku.
*** Pełną informację dotyczącą przetargu zawiera ogłosze...
Szczegóły przetargu

Termin: 2026-04-15

Organizator przetargu:
Urząd Miasta Wrocław
Przetarg na obiekt / lokal

Wrocław, Gaj, Orzechowa

...odbędzie się w siedzibie Urzędu Miejskiego Wrocławia, pl. Nowy Targ 1-8 w sali nr 215, o godz. 10:00 dnia 15 kwietnia 2026 r.
*** Wadium na w/w lokal uczestnik przetargu winien wpłacić najpóźniej do dnia 8 kwietnia 2026 r. na konto Gminy Wrocław- Bank PKO BP S.A. nr 36 1020 5226 0000 6302 0417 7655. Datą dokonania wpłaty wadium jest data uznania rachunku bankowego Gminy.
*** Dowodem wniesienia wadium jest potwierdzenie z banku.
*** Pełną informację dotyczącą przetargu zawiera ogłoszeni...
Szczegóły przetargu

Cena wywoławcza:

90 000 zł

9 534 zł/m 2

9 m2

Termin: 2026-04-15

Organizator przetargu:
Urząd Miasta Wrocław
Przetarg na obiekt / lokal

Wrocław, Gaj, Orzechowa

Cena wywoławcza:

90 000 zł

9 534 zł/m 2

9 m2

...odbędzie się w siedzibie Urzędu Miejskiego Wrocławia, pl. Nowy Targ 1-8 w sali nr 215, o godz. 10:00 dnia 15 kwietnia 2026 r.
*** Wadium na w/w lokal uczestnik przetargu winien wpłacić najpóźniej do dnia 8 kwietnia 2026 r. na konto Gminy Wrocław- Bank PKO BP S.A. nr 36 1020 5226 0000 6302 0417 7655. Datą dokonania wpłaty wadium jest data uznania rachunku bankowego Gminy.
*** Dowodem wniesienia wadium jest potwierdzenie z banku.
*** Pełną informację dotyczącą przetargu zawiera ogłoszeni...
Szczegóły przetargu

Termin: 2026-04-15

Organizator przetargu:
Urząd Miasta Wrocław
Przetarg na mieszkanie

Wrocław, Południe, generała Jana Henryka Dąbrowskiego

...odbędzie się w siedzibie Urzędu Miejskiego Wrocławia, pl. Nowy Targ 1-8 w sali nr 215, o godz. 12:00 dnia 9 kwietnia 2026 r.
*** Wadium na w/w lokal uczestnik przetargu winien wpłacić najpóźniej do dnia 2 kwietnia 2026 r. na konto Gminy Wrocław- Bank PKO BP S.A. nr 36 1020 5226 0000 6302 0417 7655. Datą dokonania wpłaty wadium jest data uznania rachunku bankowego Gminy.
*** Dowodem wniesienia wadium jest potwierdzenie z banku.
*** Pełną informację dotyczącą przetargu zawiera ogłoszeni...
Szczegóły przetargu

Cena wywoławcza:

702 000 zł

7 000 zł/m 2

100 m2 3 pokoje

Termin: 2026-04-09

Organizator przetargu:
Urząd Miasta Wrocław
Przetarg na mieszkanie

Wrocław, Południe, generała Jana Henryka Dąbrowskiego

Cena wywoławcza:

702 000 zł

7 000 zł/m 2

100 m2 3 pokoje

...odbędzie się w siedzibie Urzędu Miejskiego Wrocławia, pl. Nowy Targ 1-8 w sali nr 215, o godz. 12:00 dnia 9 kwietnia 2026 r.
*** Wadium na w/w lokal uczestnik przetargu winien wpłacić najpóźniej do dnia 2 kwietnia 2026 r. na konto Gminy Wrocław- Bank PKO BP S.A. nr 36 1020 5226 0000 6302 0417 7655. Datą dokonania wpłaty wadium jest data uznania rachunku bankowego Gminy.
*** Dowodem wniesienia wadium jest potwierdzenie z banku.
*** Pełną informację dotyczącą przetargu zawiera ogłoszeni...
Szczegóły przetargu

Termin: 2026-04-09

Organizator przetargu:
Urząd Miasta Wrocław
Przetarg na obiekt / lokal

Wrocław, Południe, Zygmunta Krasińskiego

...odbędzie się w siedzibie Urzędu Miejskiego Wrocławia, pl. Nowy Targ 1-8 w sali nr 215, o godz. 10:00 dnia 25 marca 2026 r.
*** Wadium na w/w lokal uczestnik przetargu winien wpłacić najpóźniej do dnia 18 marca 2026 r. na konto Gminy Wrocław- Bank PKO BP S.A. nr 36 1020 5226 0000 6302 0417 7655. Datą dokonania wpłaty wadium jest data uznania rachunku bankowego Gminy.
*** Dowodem wniesienia wadium jest potwierdzenie z banku.
*** Pełną informację dotyczącą przetargu zawiera ogłoszenie wy...
Szczegóły przetargu

Cena wywoławcza:

140 000 zł

6 162 zł/m 2

23 m2

Termin: 2026-03-25

Organizator przetargu:
Urząd Miasta Wrocław
Przetarg na obiekt / lokal

Wrocław, Południe, Zygmunta Krasińskiego

Cena wywoławcza:

140 000 zł

6 162 zł/m 2

23 m2

...odbędzie się w siedzibie Urzędu Miejskiego Wrocławia, pl. Nowy Targ 1-8 w sali nr 215, o godz. 10:00 dnia 25 marca 2026 r.
*** Wadium na w/w lokal uczestnik przetargu winien wpłacić najpóźniej do dnia 18 marca 2026 r. na konto Gminy Wrocław- Bank PKO BP S.A. nr 36 1020 5226 0000 6302 0417 7655. Datą dokonania wpłaty wadium jest data uznania rachunku bankowego Gminy.
*** Dowodem wniesienia wadium jest potwierdzenie z banku.
*** Pełną informację dotyczącą przetargu zawiera ogłoszenie wy...
Szczegóły przetargu

Termin: 2026-03-25

Organizator przetargu:
Urząd Miasta Wrocław
Przetarg na mieszkanie

Wrocław, Południe, pl. Zgody

...odbędzie się w siedzibie Urzędu Miejskiego Wrocławia, pl. Nowy Targ 1-8 w sali nr 215, o godz. 10:00 dnia 24 marca 2026 r.
*** Wadium na w/w lokal uczestnik przetargu winien wpłacić najpóźniej do dnia 17 marca 2026 r. na konto Gminy Wrocław- Bank PKO BP S.A. nr 36 1020 5226 0000 6302 0417 7655. Datą dokonania wpłaty wadium jest data uznania rachunku bankowego Gminy.
*** Dowodem wniesienia wadium jest potwierdzenie z banku.
*** Pełną informację dotyczącą przetargu zawiera ogłoszenie wy...
Szczegóły przetargu

Cena wywoławcza:

682 000 zł

8 001 zł/m 2

85 m2 4 pokoje

Termin: 2026-03-24

Organizator przetargu:
Urząd Miasta Wrocław
Przetarg na mieszkanie

Wrocław, Południe, pl. Zgody

Cena wywoławcza:

682 000 zł

8 001 zł/m 2

85 m2 4 pokoje

...odbędzie się w siedzibie Urzędu Miejskiego Wrocławia, pl. Nowy Targ 1-8 w sali nr 215, o godz. 10:00 dnia 24 marca 2026 r.
*** Wadium na w/w lokal uczestnik przetargu winien wpłacić najpóźniej do dnia 17 marca 2026 r. na konto Gminy Wrocław- Bank PKO BP S.A. nr 36 1020 5226 0000 6302 0417 7655. Datą dokonania wpłaty wadium jest data uznania rachunku bankowego Gminy.
*** Dowodem wniesienia wadium jest potwierdzenie z banku.
*** Pełną informację dotyczącą przetargu zawiera ogłoszenie wy...
Szczegóły przetargu

Termin: 2026-03-24

Organizator przetargu:
Urząd Miasta Wrocław
Przetarg na mieszkanie

Wrocław, Południe, Miernicza

...odbędzie się w siedzibie Urzędu Miejskiego Wrocławia, pl. Nowy Targ 1-8 w sali nr 215, o godz. 10:00 dnia 23 marca 2026 r.
*** Wadium na w/w lokal uczestnik przetargu winien wpłacić najpóźniej do dnia 16 marca 2026 r. na konto Gminy Wrocław- Bank PKO BP S.A. nr 36 1020 5226 0000 6302 0417 7655. Datą dokonania wpłaty wadium jest data uznania rachunku bankowego Gminy.
*** Dowodem wniesienia wadium jest potwierdzenie z banku.
*** Pełną informację dotyczącą przetargu zawiera ogłoszenie wyw...
Szczegóły przetargu

Cena wywoławcza:

585 000 zł

7 384 zł/m 2

79 m2 3 pokoje

Termin: 2026-03-23

Organizator przetargu:
Urząd Miasta Wrocław
Przetarg na mieszkanie

Wrocław, Południe, Miernicza

Cena wywoławcza:

585 000 zł

7 384 zł/m 2

79 m2 3 pokoje

...odbędzie się w siedzibie Urzędu Miejskiego Wrocławia, pl. Nowy Targ 1-8 w sali nr 215, o godz. 10:00 dnia 23 marca 2026 r.
*** Wadium na w/w lokal uczestnik przetargu winien wpłacić najpóźniej do dnia 16 marca 2026 r. na konto Gminy Wrocław- Bank PKO BP S.A. nr 36 1020 5226 0000 6302 0417 7655. Datą dokonania wpłaty wadium jest data uznania rachunku bankowego Gminy.
*** Dowodem wniesienia wadium jest potwierdzenie z banku.
*** Pełną informację dotyczącą przetargu zawiera ogłoszenie wyw...
Szczegóły przetargu

Termin: 2026-03-23

Organizator przetargu:
Urząd Miasta Wrocław
Przetarg na mieszkanie

Wrocław, Południe, Ślężna

...odbędzie się w siedzibie Uniwersytetu Medycznego we Wrocławiu w dniu 20 marca 2026 r. o godz. 10.00 w sali konferencyjnej nr 4.A.108.1 mieszczącej się na IV piętrze w budynku Centrum Naukowej Informacji Medycznej przy ul. Karola Marcinkowskiego 2-6; wejście administracyjne.

Wadium należy wpłacić do dnia 17 marca 2026 r. na konto Uniwersytetu Medycznego we Wrocławiu, 50-367 Wrocław, ul. Wybrzeże Ludwika Pasteura 1, Santander Bank Polska S.A. IV Oddział we Wrocławiu nr 72 1090 2402 0000 000...
Szczegóły przetargu

Cena wywoławcza:

510 000 zł

12 137 zł/m 2

42 m2 2 pokoje

Termin: 2026-03-20

Organizator przetargu:
Uniwersytet Medyczny im. Piastów Śląskich we Wrocławiu
Przetarg na mieszkanie

Wrocław, Południe, Ślężna

Cena wywoławcza:

510 000 zł

12 137 zł/m 2

42 m2 2 pokoje

...odbędzie się w siedzibie Uniwersytetu Medycznego we Wrocławiu w dniu 20 marca 2026 r. o godz. 10.00 w sali konferencyjnej nr 4.A.108.1 mieszczącej się na IV piętrze w budynku Centrum Naukowej Informacji Medycznej przy ul. Karola Marcinkowskiego 2-6; wejście administracyjne.

Wadium należy wpłacić do dnia 17 marca 2026 r. na konto Uniwersytetu Medycznego we Wrocławiu, 50-367 Wrocław, ul. Wybrzeże Ludwika Pasteura 1, Santander Bank Polska S.A. IV Oddział we Wrocławiu nr 72 1090 2402 0000 000...
Szczegóły przetargu

Termin: 2026-03-20

Organizator przetargu:
Uniwersytet Medyczny im. Piastów Śląskich we Wrocławiu
Przetarg na mieszkanie

Wrocław, Huby, Gajowa

PKP S.A. Oddział Gospodarowania Nieruchomościami we Wrocławiu przedstawia ofertę sprzedaży lokali mieszkalnych usytuowanych na III kondygnacji (drugim piętrze) budynku. Mieszkania dwustronne.

Przedmiotem jednego przetargu będą przyległe do siebie samodzielne lokale:
Lokal nr 32/6 składający się z:
• pokój nr 1 o pow. 29,87 m2
• kuchnia o pow. 8,20 m2
oraz przynależnych:
• pokój nr 2 o pow. 19,38 m2
• piwnica o pow. 25,16 m2

Lokal nr 32/6B składający się z:
• pokoju nr 1 o pow. 29...
Szczegóły przetargu

Cena wywoławcza:

945 000 zł

8 173 zł/m 2

116 m2 4 pokoje

Termin: 2026-03-19

Organizator przetargu:
PKP
Przetarg na mieszkanie

Wrocław, Huby, Gajowa

Cena wywoławcza:

945 000 zł

8 173 zł/m 2

116 m2 4 pokoje

PKP S.A. Oddział Gospodarowania Nieruchomościami we Wrocławiu przedstawia ofertę sprzedaży lokali mieszkalnych usytuowanych na III kondygnacji (drugim piętrze) budynku. Mieszkania dwustronne.

Przedmiotem jednego przetargu będą przyległe do siebie samodzielne lokale:
Lokal nr 32/6 składający się z:
• pokój nr 1 o pow. 29,87 m2
• kuchnia o pow. 8,20 m2
oraz przynależnych:
• pokój nr 2 o pow. 19,38 m2
• piwnica o pow. 25,16 m2

Lokal nr 32/6B składający się z:
• pokoju nr 1 o pow. 29...
Szczegóły przetargu

Termin: 2026-03-19

Organizator przetargu:
PKP
Przetarg na mieszkanie

Wrocław, Gaj, Jabłeczna

PKP S.A. Oddział Gospodarowania Nieruchomościami we Wrocławiu przedstawia propozycję sprzedaży lokalu mieszkalnego we Wrocławiu przy ul. Jabłecznej 17. Lokal mieszkalny nr 15 o powierzchni 71,60m2 zlokalizowany jest na 8 kondygnacji budynku mieszkalnego, jest dwustronny (północ-południe) i składa się z:
- pokoju nr 1 o pow. 19,7m2
- pokoju nr 2o pow. 11,1 m2
- pokoju nr 3o pow. 8,9 m2
- pokoju nr 4 o pow. 8,6 m2
- kuchni o pow. 8,1 m2
- schowka o pow. 2,3 m2
- przedpokoju o pow. 9,1 m2
-...
Szczegóły przetargu

Cena wywoławcza:

659 000 zł

9 204 zł/m 2

72 m2 4 pokoje

Termin: 2026-03-19

Organizator przetargu:
PKP
Przetarg na mieszkanie

Wrocław, Gaj, Jabłeczna

Cena wywoławcza:

659 000 zł

9 204 zł/m 2

72 m2 4 pokoje

PKP S.A. Oddział Gospodarowania Nieruchomościami we Wrocławiu przedstawia propozycję sprzedaży lokalu mieszkalnego we Wrocławiu przy ul. Jabłecznej 17. Lokal mieszkalny nr 15 o powierzchni 71,60m2 zlokalizowany jest na 8 kondygnacji budynku mieszkalnego, jest dwustronny (północ-południe) i składa się z:
- pokoju nr 1 o pow. 19,7m2
- pokoju nr 2o pow. 11,1 m2
- pokoju nr 3o pow. 8,9 m2
- pokoju nr 4 o pow. 8,6 m2
- kuchni o pow. 8,1 m2
- schowka o pow. 2,3 m2
- przedpokoju o pow. 9,1 m2
-...
Szczegóły przetargu

Termin: 2026-03-19

Organizator przetargu:
PKP
Przetarg na mieszkanie

Wrocław, Południe, generała Karola Kniaziewicza

...odbędzie się w siedzibie Urzędu Miejskiego Wrocławia, pl. Nowy Targ 1-8 w sali nr 215, o godz. 10:00 dnia 17 marca 2026 r.
*** Wadium na w/w lokal uczestnik przetargu winien wpłacić najpóźniej do dnia 10 marca 2026 r. na konto Gminy Wrocław- Bank PKO BP S.A. nr 36 1020 5226 0000 6302 0417 7655. Datą dokonania wpłaty wadium jest data uznania rachunku bankowego Gminy.
*** Dowodem wniesienia wadium jest potwierdzenie z banku.
*** Pełną informację dotyczącą przetargu zawiera ogłoszenie wyw...
Szczegóły przetargu

Cena wywoławcza:

650 000 zł

8 233 zł/m 2

79 m2 3 pokoje

Termin: 2026-03-17

Organizator przetargu:
Urząd Miasta Wrocław
Przetarg na mieszkanie

Wrocław, Południe, generała Karola Kniaziewicza

Cena wywoławcza:

650 000 zł

8 233 zł/m 2

79 m2 3 pokoje

...odbędzie się w siedzibie Urzędu Miejskiego Wrocławia, pl. Nowy Targ 1-8 w sali nr 215, o godz. 10:00 dnia 17 marca 2026 r.
*** Wadium na w/w lokal uczestnik przetargu winien wpłacić najpóźniej do dnia 10 marca 2026 r. na konto Gminy Wrocław- Bank PKO BP S.A. nr 36 1020 5226 0000 6302 0417 7655. Datą dokonania wpłaty wadium jest data uznania rachunku bankowego Gminy.
*** Dowodem wniesienia wadium jest potwierdzenie z banku.
*** Pełną informację dotyczącą przetargu zawiera ogłoszenie wyw...
Szczegóły przetargu

Termin: 2026-03-17

Organizator przetargu:
Urząd Miasta Wrocław
Przetarg na działkę

Wrocław, Brochów

...odbędzie się w dniu 17.03.2026 r. o godz. 10.00 w siedzibie Spółki we Wrocławiu, ul. Na Grobli 19.

3. Cena wywoławcza nieruchomości wynosi: 61 250 zł netto.

4. Do ceny sprzedaży nieruchomości doliczony zostanie podatek od towarów i usług według stawki obowiązującej na dzień zawarcia umowy sprzedaży.

5. Minimalne postąpienie wynosi 700 zł.

6. Warunkiem uczestnictwa w przetargu jest:

a) wniesienie wadium w formie pieniężnej w wysokości 10 000 zł na konto: PKO BP SA nr 3910205226...
Szczegóły przetargu

Cena wywoławcza:

75 337,50 zł

431 zł/m 2

175 m2

Termin: 2026-03-17

Organizator przetargu:
Miejskie Przedsiębiorstwo Wodociągów I Kanalizacji S.A. We Wrocławiu
Przetarg na działkę

Wrocław, Brochów

Cena wywoławcza:

75 337,50 zł

431 zł/m 2

175 m2

...odbędzie się w dniu 17.03.2026 r. o godz. 10.00 w siedzibie Spółki we Wrocławiu, ul. Na Grobli 19.

3. Cena wywoławcza nieruchomości wynosi: 61 250 zł netto.

4. Do ceny sprzedaży nieruchomości doliczony zostanie podatek od towarów i usług według stawki obowiązującej na dzień zawarcia umowy sprzedaży.

5. Minimalne postąpienie wynosi 700 zł.

6. Warunkiem uczestnictwa w przetargu jest:

a) wniesienie wadium w formie pieniężnej w wysokości 10 000 zł na konto: PKO BP SA nr 3910205226...
Szczegóły przetargu

Termin: 2026-03-17

Organizator przetargu:
Miejskie Przedsiębiorstwo Wodociągów I Kanalizacji S.A. We Wrocławiu
Przetarg na mieszkanie

Wrocław, Południe, Komuny Paryskiej

...odbędzie się w siedzibie Urzędu Miejskiego Wrocławia, pl. Nowy Targ 1-8 w sali nr 215, o godz. 12:00 dnia 12 marca 2026 r.
*** Wadium na w/w lokal uczestnik przetargu winien wpłacić najpóźniej do dnia 5 marca 2026 r. na konto Gminy Wrocław- Bank PKO BP S.A. nr 36 1020 5226 0000 6302 0417 7655. Datą dokonania wpłaty wadium jest data uznania rachunku bankowego Gminy.
*** Dowodem wniesienia wadium jest potwierdzenie z banku.
*** Pełną informację dotyczącą przetargu zawiera ogłoszenie wyw...
Szczegóły przetargu

Cena wywoławcza:

725 000 zł

8 523 zł/m 2

85 m2 4 pokoje

Termin: 2026-03-12

Organizator przetargu:
Urząd Miasta Wrocław
Przetarg na mieszkanie

Wrocław, Południe, Komuny Paryskiej

Cena wywoławcza:

725 000 zł

8 523 zł/m 2

85 m2 4 pokoje

...odbędzie się w siedzibie Urzędu Miejskiego Wrocławia, pl. Nowy Targ 1-8 w sali nr 215, o godz. 12:00 dnia 12 marca 2026 r.
*** Wadium na w/w lokal uczestnik przetargu winien wpłacić najpóźniej do dnia 5 marca 2026 r. na konto Gminy Wrocław- Bank PKO BP S.A. nr 36 1020 5226 0000 6302 0417 7655. Datą dokonania wpłaty wadium jest data uznania rachunku bankowego Gminy.
*** Dowodem wniesienia wadium jest potwierdzenie z banku.
*** Pełną informację dotyczącą przetargu zawiera ogłoszenie wyw...
Szczegóły przetargu

Termin: 2026-03-12

Organizator przetargu:
Urząd Miasta Wrocław
Przetarg na mieszkanie

Wrocław, Południe, Wandy

...odbędzie się w siedzibie Urzędu Miejskiego Wrocławia, pl. Nowy Targ 1-8 w sali nr 215, o godz. 10:00 dnia 10 marca 2026 r.
*** Wadium na w/w lokal uczestnik przetargu winien wpłacić najpóźniej do dnia 3 marca 2026 r. na konto Gminy Wrocław- Bank PKO BP S.A. nr 36 1020 5226 0000 6302 0417 7655. Datą dokonania wpłaty wadium jest data uznania rachunku bankowego Gminy.
*** Dowodem wniesienia wadium jest potwierdzenie z banku.
*** Pełną informację dotyczącą przetargu zawiera ogłoszenie wywi...
Szczegóły przetargu

Cena wywoławcza:

828 000 zł

8 871 zł/m 2

93 m2 3 pokoje

Termin: 2026-03-10

Organizator przetargu:
Urząd Miasta Wrocław
Przetarg na mieszkanie

Wrocław, Południe, Wandy

Cena wywoławcza:

828 000 zł

8 871 zł/m 2

93 m2 3 pokoje

...odbędzie się w siedzibie Urzędu Miejskiego Wrocławia, pl. Nowy Targ 1-8 w sali nr 215, o godz. 10:00 dnia 10 marca 2026 r.
*** Wadium na w/w lokal uczestnik przetargu winien wpłacić najpóźniej do dnia 3 marca 2026 r. na konto Gminy Wrocław- Bank PKO BP S.A. nr 36 1020 5226 0000 6302 0417 7655. Datą dokonania wpłaty wadium jest data uznania rachunku bankowego Gminy.
*** Dowodem wniesienia wadium jest potwierdzenie z banku.
*** Pełną informację dotyczącą przetargu zawiera ogłoszenie wywi...
Szczegóły przetargu

Termin: 2026-03-10

Organizator przetargu:
Urząd Miasta Wrocław
Przetarg na obiekt / lokal

Wrocław, Południe, plac Powstańców Śląskich

...odbędzie się w siedzibie Urzędu Miejskiego Wrocławia, pl. Nowy Targ 1-8 w sali nr 215, o godz. 10:00 dnia 2 marca 2026 r.
*** Wadium na w/w lokal uczestnik przetargu winien wpłacić najpóźniej do dnia 23 lutego 2026 r. na konto Gminy Wrocław- Bank PKO BP S.A. nr 36 1020 5226 0000 6302 0417 7655. Datą dokonania wpłaty wadium jest data uznania rachunku bankowego Gminy.
*** Dowodem wniesienia wadium jest potwierdzenie z banku.
*** Pełną informację dotyczącą przetargu zawiera ogłoszenie wy...
Szczegóły przetargu

Cena wywoławcza:

640 800 zł

7 758 zł/m 2

83 m2

Termin: 2026-03-02

Organizator przetargu:
Urząd Miasta Wrocław
Przetarg na obiekt / lokal

Wrocław, Południe, plac Powstańców Śląskich

Cena wywoławcza:

640 800 zł

7 758 zł/m 2

83 m2

...odbędzie się w siedzibie Urzędu Miejskiego Wrocławia, pl. Nowy Targ 1-8 w sali nr 215, o godz. 10:00 dnia 2 marca 2026 r.
*** Wadium na w/w lokal uczestnik przetargu winien wpłacić najpóźniej do dnia 23 lutego 2026 r. na konto Gminy Wrocław- Bank PKO BP S.A. nr 36 1020 5226 0000 6302 0417 7655. Datą dokonania wpłaty wadium jest data uznania rachunku bankowego Gminy.
*** Dowodem wniesienia wadium jest potwierdzenie z banku.
*** Pełną informację dotyczącą przetargu zawiera ogłoszenie wy...
Szczegóły przetargu

Termin: 2026-03-02

Organizator przetargu:
Urząd Miasta Wrocław
1                          32
- Najnowsze obwieszczenia o przetargach i licytacjach nieruchomości z ponad 1000 źródeł
- Ogłoszenia bezpośrednie i agencyjne z 52 portali nieruchomości