Przetargi nieruchomości: Poznań, Wilda

Lokalizacja

Organizator przetargu

Typ nieruchomości


Przetarg na mieszkanie

Poznań, Dębiec, os. Dębina

OGŁOSZENIE O PRZETARGU NA SPRZEDAŻ LOKALU MIESZKALNEGO

Spółdzielnia Mieszkaniowa „Dębina” w Poznaniu ogłasza przetarg dwuetapowy na sprzedaż prawa do lokalu mieszkalnego położonego w Poznaniu, os. Dębina 8, lokal nr 8.

I. Przedmiot przetargu

Lokal mieszkalny o powierzchni użytkowej 47,95 m², usytuowany na I piętrze XI-piętrowego budynku mieszkalnego wielorodzinnego, obejmujący:

•\t2 pokoje (11,02 m², 17,78 m²),

•\tkuchnię (7,29 m²),

•\tłazienkę (3,80 m²),

•\tkorytarz (8,06 m...
Szczegóły przetargu

Cena wywoławcza:

393 000 zł

8 196 zł/m 2

48 m2 2 pokoje

Termin: 2025-10-23

Organizator przetargu:
Spółdzielnia Mieszkaniowa ,,Dębina" w Poznaniu
Przetarg na mieszkanie

Poznań, Dębiec, os. Dębina

Cena wywoławcza:

393 000 zł

8 196 zł/m 2

48 m2 2 pokoje

OGŁOSZENIE O PRZETARGU NA SPRZEDAŻ LOKALU MIESZKALNEGO

Spółdzielnia Mieszkaniowa „Dębina” w Poznaniu ogłasza przetarg dwuetapowy na sprzedaż prawa do lokalu mieszkalnego położonego w Poznaniu, os. Dębina 8, lokal nr 8.

I. Przedmiot przetargu

Lokal mieszkalny o powierzchni użytkowej 47,95 m², usytuowany na I piętrze XI-piętrowego budynku mieszkalnego wielorodzinnego, obejmujący:

•\t2 pokoje (11,02 m², 17,78 m²),

•\tkuchnię (7,29 m²),

•\tłazienkę (3,80 m²),

•\tkorytarz (8,06 m...
Szczegóły przetargu

Termin: 2025-10-23

Organizator przetargu:
Spółdzielnia Mieszkaniowa ,,Dębina" w Poznaniu
Przetarg na mieszkanie

Poznań, Dębiec, os. Dębina

OGŁOSZENIE O PRZETARGU NA SPRZEDAŻ LOKALU MIESZKALNEGO

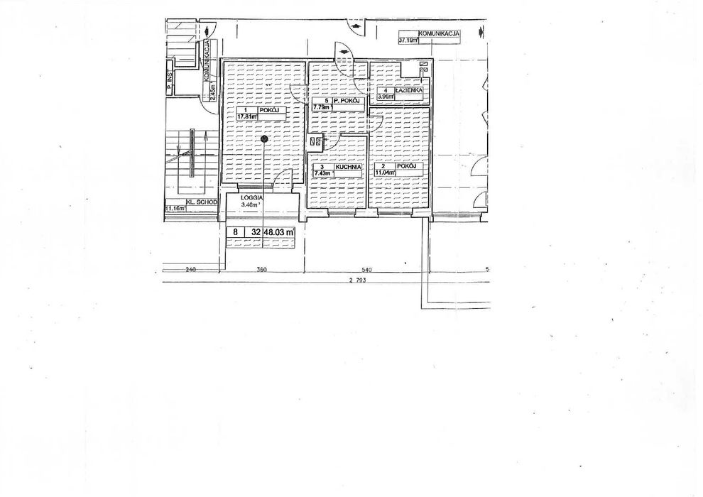
Spółdzielnia Mieszkaniowa „Dębina” w Poznaniu ogłasza przetarg dwuetapowy na sprzedaż prawa do lokalu mieszkalnego położonego w Poznaniu, os. Dębina 8, lokal nr 32.

I. Przedmiot przetargu

Lokal mieszkalny o powierzchni użytkowej 48,03 m², usytuowany na VII piętrze XI-piętrowego budynku mieszkalnego wielorodzinnego, obejmujący:

•\t2 pokoje (11,04 m², 17,81 m²),

•\tkuchnię (7,43 m²),

•\tłazienkę (3,96 m²),

•\tkorytarz (7,7...
Szczegóły przetargu

Cena wywoławcza:

407 000 zł

8 474 zł/m 2

48 m2 2 pokoje

Termin: 2025-10-23

Organizator przetargu:
Spółdzielnia Mieszkaniowa ,,Dębina" w Poznaniu
Przetarg na mieszkanie

Poznań, Dębiec, os. Dębina

Cena wywoławcza:

407 000 zł

8 474 zł/m 2

48 m2 2 pokoje

OGŁOSZENIE O PRZETARGU NA SPRZEDAŻ LOKALU MIESZKALNEGO

Spółdzielnia Mieszkaniowa „Dębina” w Poznaniu ogłasza przetarg dwuetapowy na sprzedaż prawa do lokalu mieszkalnego położonego w Poznaniu, os. Dębina 8, lokal nr 32.

I. Przedmiot przetargu

Lokal mieszkalny o powierzchni użytkowej 48,03 m², usytuowany na VII piętrze XI-piętrowego budynku mieszkalnego wielorodzinnego, obejmujący:

•\t2 pokoje (11,04 m², 17,81 m²),

•\tkuchnię (7,43 m²),

•\tłazienkę (3,96 m²),

•\tkorytarz (7,7...
Szczegóły przetargu

Termin: 2025-10-23

Organizator przetargu:
Spółdzielnia Mieszkaniowa ,,Dębina" w Poznaniu
Przetarg na mieszkanie

Poznań, Dębiec

Naczelnik Urzędu Skarbowego Poznań – Wilda informuje o sprzedaży w drodze licytacji publicznej nieruchomości lokalowej o powierzchni użytkowej 86,20 m2 (pokój - 3, kuchnia -1, łazienka/WC -1, korytarz -1, skrytka -1, piwnica -1) położonej w Poznaniu, przy ul. 28 Czerwca 1956r. nr ***/***, woj. wielkopolskie, zapisanej w księdze wieczystej nr ***, prowadzonej przez Sąd Rejonowy Poznań – Stare Miasto w Poznaniu, VI Wydział Ksiąg Wieczystych.

Termin: 30 września 2025 rok, godz. 11.30

Miejsce...
Szczegóły przetargu

Cena wywoławcza:

579 000 zł

6 717 zł/m 2

86 m2 3 pokoje

Termin: 2025-09-30

Organizator przetargu:
Urząd Skarbowy w Poznaniu
Przetarg na mieszkanie

Poznań, Dębiec

Cena wywoławcza:

579 000 zł

6 717 zł/m 2

86 m2 3 pokoje

Naczelnik Urzędu Skarbowego Poznań – Wilda informuje o sprzedaży w drodze licytacji publicznej nieruchomości lokalowej o powierzchni użytkowej 86,20 m2 (pokój - 3, kuchnia -1, łazienka/WC -1, korytarz -1, skrytka -1, piwnica -1) położonej w Poznaniu, przy ul. 28 Czerwca 1956r. nr ***/***, woj. wielkopolskie, zapisanej w księdze wieczystej nr ***, prowadzonej przez Sąd Rejonowy Poznań – Stare Miasto w Poznaniu, VI Wydział Ksiąg Wieczystych.

Termin: 30 września 2025 rok, godz. 11.30

Miejsce...
Szczegóły przetargu

Termin: 2025-09-30

Organizator przetargu:
Urząd Skarbowy w Poznaniu
Przetarg na mieszkanie

Poznań, Dębiec, os. Dębina

OGŁOSZENIE O PRZETARGU NA SPRZEDAŻ LOKALU MIESZKALNEGO

Spółdzielnia Mieszkaniowa „Dębina” w Poznaniu ogłasza przetarg dwuetapowy na sprzedaż prawa do lokalu mieszkalnego położonego w Poznaniu, os. Dębina 8, lokal nr 32.

I. Przedmiot przetargu
Lokal mieszkalny o powierzchni użytkowej 48,03 m², usytuowany na VII piętrze XI-piętrowego budynku mieszkalnego wielorodzinnego, obejmujący:
• 2 pokoje (11,04 m², 17,81 m²),
• kuchnię (7,43 m²),
• łazienkę (3,96 m²),
• korytarz (7,79 m²),
• logg...
Szczegóły przetargu

Cena wywoławcza:

450 000 zł

9 375 zł/m 2

48 m2 2 pokoje

Termin: 2025-07-25

Organizator przetargu:
Spółdzielnia Mieszkaniowa ,,Dębina" w Poznaniu
Przetarg na mieszkanie

Poznań, Dębiec, os. Dębina

Cena wywoławcza:

450 000 zł

9 375 zł/m 2

48 m2 2 pokoje

OGŁOSZENIE O PRZETARGU NA SPRZEDAŻ LOKALU MIESZKALNEGO

Spółdzielnia Mieszkaniowa „Dębina” w Poznaniu ogłasza przetarg dwuetapowy na sprzedaż prawa do lokalu mieszkalnego położonego w Poznaniu, os. Dębina 8, lokal nr 32.

I. Przedmiot przetargu
Lokal mieszkalny o powierzchni użytkowej 48,03 m², usytuowany na VII piętrze XI-piętrowego budynku mieszkalnego wielorodzinnego, obejmujący:
• 2 pokoje (11,04 m², 17,81 m²),
• kuchnię (7,43 m²),
• łazienkę (3,96 m²),
• korytarz (7,79 m²),
• logg...
Szczegóły przetargu

Termin: 2025-07-25

Organizator przetargu:
Spółdzielnia Mieszkaniowa ,,Dębina" w Poznaniu
Przetarg na mieszkanie

Poznań, Wilda, Umińskiego

Syndyk masy upadłości *** – osoby fizycznej nieprowadzącej działalności gospodarczej ogłasza o sprzedaży z wolnej ręki (w trybie konkursu ofert) i zaprasza do składania ofert nabycia udziału 1/1 części przysługującego upadłemu***w prawie odrębnej własności lokalu nr ***położonego na nieruchomości – ul. Umińskiego ***w Poznaniu, o powierzchni 76,3 m2, dla którego to prawa Sąd Rejonowy Poznań-Stare Miasto w Poznaniu, Wydział VI Ksiąg Wieczystych, prowadzi księgę wieczystą nr ***, z którym to prawe...
Szczegóły przetargu

Cena wywoławcza:

880 000 zł

11 579 zł/m 2

76 m2 4 pokoje

Termin: 2025-06-25

Organizator przetargu:
Syndyk
Przetarg na mieszkanie

Poznań, Wilda, Umińskiego

Cena wywoławcza:

880 000 zł

11 579 zł/m 2

76 m2 4 pokoje

Syndyk masy upadłości *** – osoby fizycznej nieprowadzącej działalności gospodarczej ogłasza o sprzedaży z wolnej ręki (w trybie konkursu ofert) i zaprasza do składania ofert nabycia udziału 1/1 części przysługującego upadłemu***w prawie odrębnej własności lokalu nr ***położonego na nieruchomości – ul. Umińskiego ***w Poznaniu, o powierzchni 76,3 m2, dla którego to prawa Sąd Rejonowy Poznań-Stare Miasto w Poznaniu, Wydział VI Ksiąg Wieczystych, prowadzi księgę wieczystą nr ***, z którym to prawe...
Szczegóły przetargu

Termin: 2025-06-25

Organizator przetargu:
Syndyk
Przetarg na mieszkanie

Poznań, Dębiec, os. Dębina

OGŁOSZENIE O PRZETARGU NA SPRZEDAŻ LOKALU MIESZKALNEGO

Spółdzielnia Mieszkaniowa „Dębina” w Poznaniu ogłasza przetarg dwuetapowy na sprzedaż prawa do lokalu mieszkalnego położonego w Poznaniu, os. Dębina 8, lokal nr 32.

I. Przedmiot przetargu

Lokal mieszkalny o powierzchni użytkowej 48,03 m², usytuowany na VII piętrze XI-piętrowego budynku mieszkalnego wielorodzinnego, obejmujący:

•\t2 pokoje (11,04 m², 17,81 m²),

•\tkuchnię (7,43 m²),

•\tłazienkę (3,96 m²),

•\tkorytarz (7,7...
Szczegóły przetargu

Cena wywoławcza:

450 000 zł

9 369 zł/m 2

48 m2 2 pokoje

Termin: 2025-06-11

Organizator przetargu:
Spółdzielnia Mieszkaniowa ,,Dębina" w Poznaniu
Przetarg na mieszkanie

Poznań, Dębiec, os. Dębina

Cena wywoławcza:

450 000 zł

9 369 zł/m 2

48 m2 2 pokoje

OGŁOSZENIE O PRZETARGU NA SPRZEDAŻ LOKALU MIESZKALNEGO

Spółdzielnia Mieszkaniowa „Dębina” w Poznaniu ogłasza przetarg dwuetapowy na sprzedaż prawa do lokalu mieszkalnego położonego w Poznaniu, os. Dębina 8, lokal nr 32.

I. Przedmiot przetargu

Lokal mieszkalny o powierzchni użytkowej 48,03 m², usytuowany na VII piętrze XI-piętrowego budynku mieszkalnego wielorodzinnego, obejmujący:

•\t2 pokoje (11,04 m², 17,81 m²),

•\tkuchnię (7,43 m²),

•\tłazienkę (3,96 m²),

•\tkorytarz (7,7...
Szczegóły przetargu

Termin: 2025-06-11

Organizator przetargu:
Spółdzielnia Mieszkaniowa ,,Dębina" w Poznaniu
Przetarg na mieszkanie

Poznań, Dębiec, os. Dębina

OGŁOSZENIE O PRZETARGU NA SPRZEDAŻ LOKALU MIESZKALNEGO

Spółdzielnia Mieszkaniowa „Dębina” w Poznaniu ogłasza przetarg dwuetapowy na sprzedaż prawa do lokalu mieszkalnego położonego w Poznaniu, os. Dębina 8, lokal nr 8.

I. Przedmiot przetargu

Lokal mieszkalny o powierzchni użytkowej 47,95 m², usytuowany na I piętrze XI-piętrowego budynku mieszkalnego wielorodzinnego, obejmujący:

•\t2 pokoje (11,02 m², 17,78 m²),

•\tkuchnię (7,29 m²),

•\tłazienkę (3,80 m²),

•\tkorytarz (8,06 m...
Szczegóły przetargu

Cena wywoławcza:

441 000 zł

9 197 zł/m 2

48 m2 2 pokoje

Termin: 2025-06-11

Organizator przetargu:
Spółdzielnia Mieszkaniowa ,,Dębina" w Poznaniu
Przetarg na mieszkanie

Poznań, Dębiec, os. Dębina

Cena wywoławcza:

441 000 zł

9 197 zł/m 2

48 m2 2 pokoje

OGŁOSZENIE O PRZETARGU NA SPRZEDAŻ LOKALU MIESZKALNEGO

Spółdzielnia Mieszkaniowa „Dębina” w Poznaniu ogłasza przetarg dwuetapowy na sprzedaż prawa do lokalu mieszkalnego położonego w Poznaniu, os. Dębina 8, lokal nr 8.

I. Przedmiot przetargu

Lokal mieszkalny o powierzchni użytkowej 47,95 m², usytuowany na I piętrze XI-piętrowego budynku mieszkalnego wielorodzinnego, obejmujący:

•\t2 pokoje (11,02 m², 17,78 m²),

•\tkuchnię (7,29 m²),

•\tłazienkę (3,80 m²),

•\tkorytarz (8,06 m...
Szczegóły przetargu

Termin: 2025-06-11

Organizator przetargu:
Spółdzielnia Mieszkaniowa ,,Dębina" w Poznaniu
Przetarg na mieszkanie

Poznań, Wilda, os. Dębina

OGŁOSZENIE O PRZETARGU NA SPRZEDAŻ LOKALU MIESZKALNEGO

Spółdzielnia Mieszkaniowa „Dębina” w Poznaniu ogłasza przetarg dwuetapowy na sprzedaż prawa do lokalu mieszkalnego położonego w Poznaniu, os. Dębina 8, lokal nr 32.

I. Przedmiot przetargu
Lokal mieszkalny o powierzchni użytkowej 48,03 m², usytuowany na VII piętrze XI-piętrowego budynku mieszkalnego wielorodzinnego, obejmujący:
• 2 pokoje (11,04 m², 17,81 m²),
• kuchnię (7,43 m²),
• łazienkę (3,96 m²),
• korytarz (7,79 m²),
• logg...
Szczegóły przetargu

Cena wywoławcza:

450 000 zł

9 375 zł/m 2

48 m2 2 pokoje

Termin: 2025-05-14

Organizator przetargu:
Spółdzielnia Mieszkaniowa ,,Dębina" w Poznaniu
Przetarg na mieszkanie

Poznań, Wilda, os. Dębina

Cena wywoławcza:

450 000 zł

9 375 zł/m 2

48 m2 2 pokoje

OGŁOSZENIE O PRZETARGU NA SPRZEDAŻ LOKALU MIESZKALNEGO

Spółdzielnia Mieszkaniowa „Dębina” w Poznaniu ogłasza przetarg dwuetapowy na sprzedaż prawa do lokalu mieszkalnego położonego w Poznaniu, os. Dębina 8, lokal nr 32.

I. Przedmiot przetargu
Lokal mieszkalny o powierzchni użytkowej 48,03 m², usytuowany na VII piętrze XI-piętrowego budynku mieszkalnego wielorodzinnego, obejmujący:
• 2 pokoje (11,04 m², 17,81 m²),
• kuchnię (7,43 m²),
• łazienkę (3,96 m²),
• korytarz (7,79 m²),
• logg...
Szczegóły przetargu

Termin: 2025-05-14

Organizator przetargu:
Spółdzielnia Mieszkaniowa ,,Dębina" w Poznaniu
Przetarg na mieszkanie

Poznań, Wilda, os. Dębina

OGŁOSZENIE O PRZETARGU NA SPRZEDAŻ LOKALU MIESZKALNEGO

Spółdzielnia Mieszkaniowa „Dębina” w Poznaniu ogłasza przetarg dwuetapowy na sprzedaż prawa do lokalu mieszkalnego położonego w Poznaniu, os. Dębina 8, lokal nr 8.

I. Przedmiot przetargu
Lokal mieszkalny o powierzchni użytkowej 47,95 m², usytuowany na I piętrze XI-piętrowego budynku mieszkalnego wielorodzinnego, obejmujący:
• 2 pokoje (11,02 m², 17,78 m²),
• kuchnię (7,29 m²),
• łazienkę (3,80 m²),
• korytarz (8,06 m²),
• loggie ...
Szczegóły przetargu

Cena wywoławcza:

441 000 zł

9 383 zł/m 2

47 m2 2 pokoje

Termin: 2025-05-06

Organizator przetargu:
Spółdzielnia Mieszkaniowa ,,Dębina" w Poznaniu
Przetarg na mieszkanie

Poznań, Wilda, os. Dębina

Cena wywoławcza:

441 000 zł

9 383 zł/m 2

47 m2 2 pokoje

OGŁOSZENIE O PRZETARGU NA SPRZEDAŻ LOKALU MIESZKALNEGO

Spółdzielnia Mieszkaniowa „Dębina” w Poznaniu ogłasza przetarg dwuetapowy na sprzedaż prawa do lokalu mieszkalnego położonego w Poznaniu, os. Dębina 8, lokal nr 8.

I. Przedmiot przetargu
Lokal mieszkalny o powierzchni użytkowej 47,95 m², usytuowany na I piętrze XI-piętrowego budynku mieszkalnego wielorodzinnego, obejmujący:
• 2 pokoje (11,02 m², 17,78 m²),
• kuchnię (7,29 m²),
• łazienkę (3,80 m²),
• korytarz (8,06 m²),
• loggie ...
Szczegóły przetargu

Termin: 2025-05-06

Organizator przetargu:
Spółdzielnia Mieszkaniowa ,,Dębina" w Poznaniu
Przetarg na mieszkanie

Poznań, Wilda

Syndyk Masy Upadłości*** ogłasza o I terminie sprzedaży z wolnej ręki (w trybie konkursu ofert) i zaprasza do składania ofert nabycia nieruchomości w postaci lokalu mieszkalnego stanowiącego odrębną własność położonego w Poznaniu przy ul. Kilińskiego ***/***, dla której Sąd Rejonowy Poznań Stare Miasto w Poznaniu prowadzi księgę wieczystą o numerze ***. Mieszkanie ma powierzchnię 26,5 m2.



Oferowana cena nabycia nieruchomości nie może być niższa niż kwota 204.600,00 złotych. Wadium stan...
Szczegóły przetargu

Cena wywoławcza:

204 600 zł

7 721 zł/m 2

27 m2 1 pokój

Termin: 2024-11-29

Organizator przetargu:
Syndyk
Przetarg na mieszkanie

Poznań, Wilda

Cena wywoławcza:

204 600 zł

7 721 zł/m 2

27 m2 1 pokój

Syndyk Masy Upadłości*** ogłasza o I terminie sprzedaży z wolnej ręki (w trybie konkursu ofert) i zaprasza do składania ofert nabycia nieruchomości w postaci lokalu mieszkalnego stanowiącego odrębną własność położonego w Poznaniu przy ul. Kilińskiego ***/***, dla której Sąd Rejonowy Poznań Stare Miasto w Poznaniu prowadzi księgę wieczystą o numerze ***. Mieszkanie ma powierzchnię 26,5 m2.



Oferowana cena nabycia nieruchomości nie może być niższa niż kwota 204.600,00 złotych. Wadium stan...
Szczegóły przetargu

Termin: 2024-11-29

Organizator przetargu:
Syndyk
Przetarg na mieszkanie

Poznań, Wilda, Osinowa

...odbędzie się w kancelarii syndyka w dniu 25 listopada 2024 r. o godzinie 10:00 w kancelarii syndyka (Al. Reymonta 12A, 01-842 Warszawa).

Jeśli zostanie złożona więcej niż jedna oferta spełniająca warunki konkursu, syndyk zarządzi przeprowadzenie aukcji (przetarg ustny) wśród wszystkich obecnych oferentów, których oferty nie zostały odrzucone na warunkach określonych w regulaminie konkursu. Licytacja odbędzie się w ciągu 7 dni od daty otwarcia ofert. Oferenci zostaną powiadomieni o dacie l...
Szczegóły przetargu

Cena wywoławcza:

313 000 zł

8 673 zł/m 2

36 m2 2 pokoje

Termin: 2024-11-22

Organizator przetargu:
Syndyk
Przetarg na mieszkanie

Poznań, Wilda, Osinowa

Cena wywoławcza:

313 000 zł

8 673 zł/m 2

36 m2 2 pokoje

...odbędzie się w kancelarii syndyka w dniu 25 listopada 2024 r. o godzinie 10:00 w kancelarii syndyka (Al. Reymonta 12A, 01-842 Warszawa).

Jeśli zostanie złożona więcej niż jedna oferta spełniająca warunki konkursu, syndyk zarządzi przeprowadzenie aukcji (przetarg ustny) wśród wszystkich obecnych oferentów, których oferty nie zostały odrzucone na warunkach określonych w regulaminie konkursu. Licytacja odbędzie się w ciągu 7 dni od daty otwarcia ofert. Oferenci zostaną powiadomieni o dacie l...
Szczegóły przetargu

Termin: 2024-11-22

Organizator przetargu:
Syndyk
Przetarg na działkę

Poznań, Wilda

PKP S.A. Oddział Gospodarowania Nieruchomościami w Poznaniu oferuje do sprzedaży nieruchomość położoną w Poznaniu, na którą składa się prawo użytkowania wieczystego działki oznaczonej ewidencyjnie numerem 5/83 o pow. 0,0341ha, obręb Wilda. Przedmiotowa działka ma kształt nieregularny, zbliżony do trapezu oraz płaskie ukształtowanie terenu. Działka jest niezabudowana. Nieruchomość usytuowana jest w strefie uzbrojenia w energię elektryczną, wodociąg miejski, kanalizację zbiorczą i gaz. Sprzedaż pr...
Szczegóły przetargu

Cena wywoławcza:

515 000 zł

1 510 zł/m 2

341 m2

Termin: 2024-11-18

Organizator przetargu:
PKP
Przetarg na działkę

Poznań, Wilda

Cena wywoławcza:

515 000 zł

1 510 zł/m 2

341 m2

PKP S.A. Oddział Gospodarowania Nieruchomościami w Poznaniu oferuje do sprzedaży nieruchomość położoną w Poznaniu, na którą składa się prawo użytkowania wieczystego działki oznaczonej ewidencyjnie numerem 5/83 o pow. 0,0341ha, obręb Wilda. Przedmiotowa działka ma kształt nieregularny, zbliżony do trapezu oraz płaskie ukształtowanie terenu. Działka jest niezabudowana. Nieruchomość usytuowana jest w strefie uzbrojenia w energię elektryczną, wodociąg miejski, kanalizację zbiorczą i gaz. Sprzedaż pr...
Szczegóły przetargu

Termin: 2024-11-18

Organizator przetargu:
PKP
Przetarg na mieszkanie

Poznań, Dębiec, Osinowa

...odbędzie się w kancelarii syndyka w dniu 7 listopada 2024 r. o godzinie 11:00 w kancelarii syndyka (Al. Reymonta 12A, 01-842 Warszawa).

Jeśli zostanie złożona więcej niż jedna oferta spełniająca warunki konkursu, syndyk zarządzi przeprowadzenie aukcji (przetarg ustny) wśród wszystkich obecnych oferentów, których oferty nie zostały odrzucone na warunkach określonych w regulaminie konkursu. Licytacja odbędzie się w ciągu 7 dni od daty otwarcia ofert. Oferenci zostaną powiadomieni o dacie li...
Szczegóły przetargu

Cena wywoławcza:

329 500 zł

9 130 zł/m 2

36 m2 2 pokoje

Termin: 2024-11-06

Organizator przetargu:
Lege Restrukturyzacje Sp. z o.o
Przetarg na mieszkanie

Poznań, Dębiec, Osinowa

Cena wywoławcza:

329 500 zł

9 130 zł/m 2

36 m2 2 pokoje

...odbędzie się w kancelarii syndyka w dniu 7 listopada 2024 r. o godzinie 11:00 w kancelarii syndyka (Al. Reymonta 12A, 01-842 Warszawa).

Jeśli zostanie złożona więcej niż jedna oferta spełniająca warunki konkursu, syndyk zarządzi przeprowadzenie aukcji (przetarg ustny) wśród wszystkich obecnych oferentów, których oferty nie zostały odrzucone na warunkach określonych w regulaminie konkursu. Licytacja odbędzie się w ciągu 7 dni od daty otwarcia ofert. Oferenci zostaną powiadomieni o dacie li...
Szczegóły przetargu

Termin: 2024-11-06

Organizator przetargu:
Lege Restrukturyzacje Sp. z o.o
Przetarg na mieszkanie

Poznań, Wilda, Czajcza

...odbędzie się w Spółdzielni w Poznaniu przy ul. Langiewicza 23 w dniu 22 października 2024 roku o godzinie 13.00.

Wniosek o udział w przetargu należy złożyć do 22 października 2024 roku do godziny 10.00 w siedzibie Spółdzielni w Poznaniu przy ul. Langiewicza 23.

Warunkiem uczestniczenia w przetargu jest wpłacenie wadium w wysokości 10% ceny wywoławczej na konto bankowe Spółdzielni.

Wszelkich informacji na temat mieszkania oraz przetargu można uzyskać w Spółdzielni lub na stronie Spół...
Szczegóły przetargu

Cena wywoławcza:

326 600 zł

7 147 zł/m 2

46 m2 2 pokoje

Termin: 2024-10-22

Organizator przetargu:
Spółdzielnia Mieszkaniowa im. H. Cegielskiego w Poznaniu
Przetarg na mieszkanie

Poznań, Wilda, Czajcza

Cena wywoławcza:

326 600 zł

7 147 zł/m 2

46 m2 2 pokoje

...odbędzie się w Spółdzielni w Poznaniu przy ul. Langiewicza 23 w dniu 22 października 2024 roku o godzinie 13.00.

Wniosek o udział w przetargu należy złożyć do 22 października 2024 roku do godziny 10.00 w siedzibie Spółdzielni w Poznaniu przy ul. Langiewicza 23.

Warunkiem uczestniczenia w przetargu jest wpłacenie wadium w wysokości 10% ceny wywoławczej na konto bankowe Spółdzielni.

Wszelkich informacji na temat mieszkania oraz przetargu można uzyskać w Spółdzielni lub na stronie Spół...
Szczegóły przetargu

Termin: 2024-10-22

Organizator przetargu:
Spółdzielnia Mieszkaniowa im. H. Cegielskiego w Poznaniu
Przetarg na mieszkanie

Poznań, Dębiec, os. Dębina

...odbędzie się :

•\tETAP 1 składanie ofert do dnia 17.09.2024 r. do godz. 14.00

•\tETAP 2 licytacja lokalu dnia 18.09.2024 r. o godz. 11.00 w Klubie Osiedlowym ,,DĘBCZAK" Poznań, os. Dębina 107

Mieszkanie nie jest obciążone, brak księgi wieczystej, wymagające remontu. Dokładny opis lokalu znajduje się w operacie szacunkowym (do zapoznania się w sekretariacie S.M. „Dębina”).

Przystępujący do przetargu (licytant) jest zobowiązany wpłacić wadium w wysokości

10 % ceny wywoławczej n...
Szczegóły przetargu

Cena wywoławcza:

341 000 zł

7 100 zł/m 2

48 m2 2 pokoje

Termin: 2024-09-17

Organizator przetargu:
Spółdzielnia Mieszkaniowa ,,Dębina" w Poznaniu
Przetarg na mieszkanie

Poznań, Dębiec, os. Dębina

Cena wywoławcza:

341 000 zł

7 100 zł/m 2

48 m2 2 pokoje

...odbędzie się :

•\tETAP 1 składanie ofert do dnia 17.09.2024 r. do godz. 14.00

•\tETAP 2 licytacja lokalu dnia 18.09.2024 r. o godz. 11.00 w Klubie Osiedlowym ,,DĘBCZAK" Poznań, os. Dębina 107

Mieszkanie nie jest obciążone, brak księgi wieczystej, wymagające remontu. Dokładny opis lokalu znajduje się w operacie szacunkowym (do zapoznania się w sekretariacie S.M. „Dębina”).

Przystępujący do przetargu (licytant) jest zobowiązany wpłacić wadium w wysokości

10 % ceny wywoławczej n...
Szczegóły przetargu

Termin: 2024-09-17

Organizator przetargu:
Spółdzielnia Mieszkaniowa ,,Dębina" w Poznaniu
- Najnowsze obwieszczenia o przetargach i licytacjach nieruchomości z ponad 1000 źródeł
- Ogłoszenia bezpośrednie i agencyjne z 52 portali nieruchomości