Przetargi: mieszkania Kraków

Lokalizacja

Organizator przetargu

Typ nieruchomości


Przetarg na mieszkanie

Kraków, Bronowice, Adama Staszczyka

Ogłoszenie o przetargu

Narodowy Instytut Onkologii im. Marii Skłodowskiej-Curie Państwowy Instytut Badawczy Oddział w Krakowie, ul. Garncarska 11, 31-115 Kraków ogłasza przetarg pisemny na sprzedaż 3 mieszkań stanowiących współwłasność.

Przedmiot sprzedaży:

A. Mieszkanie przy ul. Adama Staszczyka 2

Samodzielny lokal mieszkalny nr 38, pow. użytk. 59,51 m2, udział 36/1000 w nieruchomości wspólnej, 3 pokoje, kuchnia, łazienka, wc i przedpokój, balkon od strony wschodniej, piwnica, c.o. ...
Szczegóły przetargu

Cena wywoławcza:

907 000 zł

15 373 zł/m2

59 m2 3 pokoje

Termin: 2025-11-17

Organizator przetargu:
Narodowy Instytut Onkologii im. Marii Skłodowskiej-Curie Państwowy Instytut Badawczy Oddział w Krakowie
Przetarg na mieszkanie

Kraków, Bronowice, Adama Staszczyka

Cena wywoławcza:

907 000 zł

15 373 zł/m2

59 m2 3 pokoje

Ogłoszenie o przetargu

Narodowy Instytut Onkologii im. Marii Skłodowskiej-Curie Państwowy Instytut Badawczy Oddział w Krakowie, ul. Garncarska 11, 31-115 Kraków ogłasza przetarg pisemny na sprzedaż 3 mieszkań stanowiących współwłasność.

Przedmiot sprzedaży:

A. Mieszkanie przy ul. Adama Staszczyka 2

Samodzielny lokal mieszkalny nr 38, pow. użytk. 59,51 m2, udział 36/1000 w nieruchomości wspólnej, 3 pokoje, kuchnia, łazienka, wc i przedpokój, balkon od strony wschodniej, piwnica, c.o. ...
Szczegóły przetargu

Termin: 2025-11-17

Organizator przetargu:
Narodowy Instytut Onkologii im. Marii Skłodowskiej-Curie Państwowy Instytut Badawczy Oddział w Krakowie
Przetarg na mieszkanie

Kraków, Krowodrza, Kazimierza Wielkiego

Ogłoszenie o przetargu

Narodowy Instytut Onkologii im. Marii Skłodowskiej-Curie Państwowy Instytut Badawczy Oddział w Krakowie, ul. Garncarska 11, 31-115 Kraków ogłasza przetarg pisemny na sprzedaż 3 mieszkań stanowiących współwłasność.

Przedmiot sprzedaży:

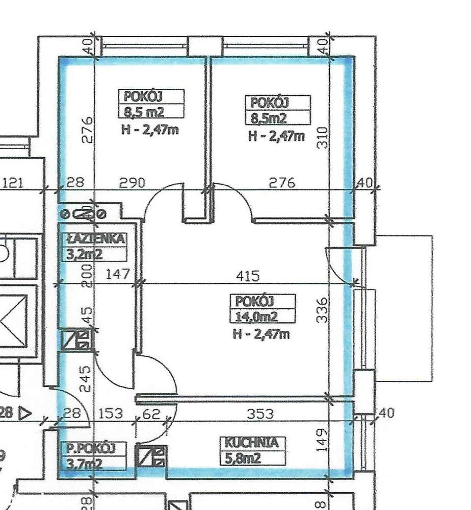
Mieszkanie przy ul. Kazimierza Wielkiego 47

Samodzielny lokal mieszkalny nr 29, pow. użytk. 65,66 m2, udział 176/10000 w nieruchomości wspólnej, 3 pokoje, w tym 1 z aneksem kuchennym, łazienka z wc, przedpokój, balkon od strony za...
Szczegóły przetargu

Cena wywoławcza:

1 313 000 zł

20 200 zł/m2

65 m2 3 pokoje

Termin: 2025-11-17

Organizator przetargu:
Narodowy Instytut Onkologii im. Marii Skłodowskiej-Curie Państwowy Instytut Badawczy Oddział w Krakowie
Przetarg na mieszkanie

Kraków, Krowodrza, Kazimierza Wielkiego

Cena wywoławcza:

1 313 000 zł

20 200 zł/m2

65 m2 3 pokoje

Ogłoszenie o przetargu

Narodowy Instytut Onkologii im. Marii Skłodowskiej-Curie Państwowy Instytut Badawczy Oddział w Krakowie, ul. Garncarska 11, 31-115 Kraków ogłasza przetarg pisemny na sprzedaż 3 mieszkań stanowiących współwłasność.

Przedmiot sprzedaży:

Mieszkanie przy ul. Kazimierza Wielkiego 47

Samodzielny lokal mieszkalny nr 29, pow. użytk. 65,66 m2, udział 176/10000 w nieruchomości wspólnej, 3 pokoje, w tym 1 z aneksem kuchennym, łazienka z wc, przedpokój, balkon od strony za...
Szczegóły przetargu

Termin: 2025-11-17

Organizator przetargu:
Narodowy Instytut Onkologii im. Marii Skłodowskiej-Curie Państwowy Instytut Badawczy Oddział w Krakowie
Przetarg na mieszkanie

Kraków, Bronowice, Zaczarowane Koło

Ogłoszenie o przetargu

Narodowy Instytut Onkologii im. Marii Skłodowskiej-Curie Państwowy Instytut Badawczy Oddział w Krakowie, ul. Garncarska 11, 31-115 Kraków ogłasza przetarg pisemny na sprzedaż 3 mieszkań stanowiących współwłasność.

Przedmiot sprzedaży:

Mieszkanie przy ul. Zaczarowane Koło 5

Samodzielny lokal mieszkalny nr 3, pow. użytk. 64,00 m2, udział 35/10000 w nieruchomości wspólnej, 4 pokoje, kuchnia, spiżarnia, łazienka, wc i przedpokój, balkon, piwnica. c.o. i c.w.u. (pie...
Szczegóły przetargu

Cena wywoławcza:

1 052 000 zł

16 438 zł/m2

64 m2 4 pokoje

Termin: 2025-11-17

Organizator przetargu:
Narodowy Instytut Onkologii im. Marii Skłodowskiej-Curie Państwowy Instytut Badawczy Oddział w Krakowie
Przetarg na mieszkanie

Kraków, Bronowice, Zaczarowane Koło

Cena wywoławcza:

1 052 000 zł

16 438 zł/m2

64 m2 4 pokoje

Ogłoszenie o przetargu

Narodowy Instytut Onkologii im. Marii Skłodowskiej-Curie Państwowy Instytut Badawczy Oddział w Krakowie, ul. Garncarska 11, 31-115 Kraków ogłasza przetarg pisemny na sprzedaż 3 mieszkań stanowiących współwłasność.

Przedmiot sprzedaży:

Mieszkanie przy ul. Zaczarowane Koło 5

Samodzielny lokal mieszkalny nr 3, pow. użytk. 64,00 m2, udział 35/10000 w nieruchomości wspólnej, 4 pokoje, kuchnia, spiżarnia, łazienka, wc i przedpokój, balkon, piwnica. c.o. i c.w.u. (pie...
Szczegóły przetargu

Termin: 2025-11-17

Organizator przetargu:
Narodowy Instytut Onkologii im. Marii Skłodowskiej-Curie Państwowy Instytut Badawczy Oddział w Krakowie
Przetarg na mieszkanie

Kraków, Bieńczyce, os. Kościuszkowskie

Syndyk sprzeda w ramach drugiego przetargu w postępowaniu upadłościowym KR1S/GUp-s/364/2022 samodzielny lokal mieszkalny nr ***położony na os. Kościuszkowskim w Krakowie, w budynku wielorodzinnym o numerze ***, dla którego Sąd Rejonowy dla Krakowa Podgórza w Krakowie prowadzi księgę wieczystą nr *** za cenę nie niższą niż 253.014,30 złotych.

Oferty należy składać zgodnie z warunkami przetargu osobiście lub na adres syndyka: ***., ul. Mogilska 15bB/5, 31-542 Kraków w terminie do dnia w termini...
Szczegóły przetargu

Cena wywoławcza:

253 014,30 zł

7 737 zł/m2

33 m2 2 pokoje

Termin: 2025-11-13

Organizator przetargu:
Syndyk
Przetarg na mieszkanie

Kraków, Bieńczyce, os. Kościuszkowskie

Cena wywoławcza:

253 014,30 zł

7 737 zł/m2

33 m2 2 pokoje

Syndyk sprzeda w ramach drugiego przetargu w postępowaniu upadłościowym KR1S/GUp-s/364/2022 samodzielny lokal mieszkalny nr ***położony na os. Kościuszkowskim w Krakowie, w budynku wielorodzinnym o numerze ***, dla którego Sąd Rejonowy dla Krakowa Podgórza w Krakowie prowadzi księgę wieczystą nr *** za cenę nie niższą niż 253.014,30 złotych.

Oferty należy składać zgodnie z warunkami przetargu osobiście lub na adres syndyka: ***., ul. Mogilska 15bB/5, 31-542 Kraków w terminie do dnia w termini...
Szczegóły przetargu

Termin: 2025-11-13

Organizator przetargu:
Syndyk
Przetarg na mieszkanie

Kraków, Al. Pokoju

Syndyk masy upadłości *** osoby fizycznej nieprowadzącej działalności gospodarczej ogłasza przetarg na sprzedaż:

*** lokalu mieszkalnego nr ***w Krakowie przy Al. Pokoju ***, dla którego Sąd Rejonowy dla Krakowa - Podgórza w Krakowie IV Wydział Ksiąg Wieczystych prowadzi księgę wieczystą ***;
*** nieruchomości gruntowej zabudowanej położonej w miejscowości Przeginia Narodowa przy ul. Bukowej ***, obejmującej dz. ewid. *** dla której Sąd Rejonowy dla Krakowa - Krowodrzy w Krakowie VII Zamie...
Szczegóły przetargu

Cena wywoławcza:

337 600 zł

10 855 zł/m2

31 m2

Termin: 2025-11-06

Organizator przetargu:
Syndyk
Przetarg na mieszkanie

Kraków, Al. Pokoju

Cena wywoławcza:

337 600 zł

10 855 zł/m2

31 m2

Syndyk masy upadłości *** osoby fizycznej nieprowadzącej działalności gospodarczej ogłasza przetarg na sprzedaż:

*** lokalu mieszkalnego nr ***w Krakowie przy Al. Pokoju ***, dla którego Sąd Rejonowy dla Krakowa - Podgórza w Krakowie IV Wydział Ksiąg Wieczystych prowadzi księgę wieczystą ***;
*** nieruchomości gruntowej zabudowanej położonej w miejscowości Przeginia Narodowa przy ul. Bukowej ***, obejmującej dz. ewid. *** dla której Sąd Rejonowy dla Krakowa - Krowodrzy w Krakowie VII Zamie...
Szczegóły przetargu

Termin: 2025-11-06

Organizator przetargu:
Syndyk
Przetarg na mieszkanie

Kraków, Krowodrza, Mazowiecka

...odbędzie się w dniu 31 października 2025 roku (piątek) o godz. 10:00 w budynku Urzędu Miasta w Nowym Targu przy ul. Krzywej 1, sala nr 020, parter.
*** Osoby zamierzające uczestniczyć w przetargu, przed przystąpieniem do niego wpłacają wadium w pieniądzu w wysokości 47 000,00 zł (słownie: czterdzieści siedem tysięcy złotych 00/100). Wpłata winna znaleźć się na koncie Urzędu Miasta w Nowym Targu w Banku Pekao S.A. I Oddział w Nowym Targu nr: 45 1240 1574 1111 0010 2422 2171 najpóźniej w dni...
Szczegóły przetargu

Cena wywoławcza:

470 000 zł

18 395 zł/m2

26 m2

Termin: 2025-10-31

Organizator przetargu:
Urząd Miasta Nowy Targ
Przetarg na mieszkanie

Kraków, Krowodrza, Mazowiecka

Cena wywoławcza:

470 000 zł

18 395 zł/m2

26 m2

...odbędzie się w dniu 31 października 2025 roku (piątek) o godz. 10:00 w budynku Urzędu Miasta w Nowym Targu przy ul. Krzywej 1, sala nr 020, parter.
*** Osoby zamierzające uczestniczyć w przetargu, przed przystąpieniem do niego wpłacają wadium w pieniądzu w wysokości 47 000,00 zł (słownie: czterdzieści siedem tysięcy złotych 00/100). Wpłata winna znaleźć się na koncie Urzędu Miasta w Nowym Targu w Banku Pekao S.A. I Oddział w Nowym Targu nr: 45 1240 1574 1111 0010 2422 2171 najpóźniej w dni...
Szczegóły przetargu

Termin: 2025-10-31

Organizator przetargu:
Urząd Miasta Nowy Targ
Przetarg na mieszkanie

Kraków, Dębniki, Barska

...odbędzie się w dniu 31 października 2025 roku (piątek) o godz. 14:30 w budynku Urzędu Miasta w Nowym Targu przy ul. Krzywej 1, sala nr 020, parter.
*** Osoby zamierzające uczestniczyć w przetargu, przed przystąpieniem do niego wpłacają wadium w pieniądzu w wysokości 44 000,00 zł (słownie: czterdzieści cztery tysiące złotych 00/100). Wpłata winna znaleźć się na koncie Urzędu Miasta w Nowym Targu w Banku Pekao S.A. I Oddział w Nowym Targu nr: 45 1240 1574 1111 0010 2422 2171 najpóźniej w dni...
Szczegóły przetargu

Cena wywoławcza:

440 000 zł

18 565 zł/m2

24 m2

Termin: 2025-10-31

Organizator przetargu:
Urząd Miasta Nowy Targ
Przetarg na mieszkanie

Kraków, Dębniki, Barska

Cena wywoławcza:

440 000 zł

18 565 zł/m2

24 m2

...odbędzie się w dniu 31 października 2025 roku (piątek) o godz. 14:30 w budynku Urzędu Miasta w Nowym Targu przy ul. Krzywej 1, sala nr 020, parter.
*** Osoby zamierzające uczestniczyć w przetargu, przed przystąpieniem do niego wpłacają wadium w pieniądzu w wysokości 44 000,00 zł (słownie: czterdzieści cztery tysiące złotych 00/100). Wpłata winna znaleźć się na koncie Urzędu Miasta w Nowym Targu w Banku Pekao S.A. I Oddział w Nowym Targu nr: 45 1240 1574 1111 0010 2422 2171 najpóźniej w dni...
Szczegóły przetargu

Termin: 2025-10-31

Organizator przetargu:
Urząd Miasta Nowy Targ
Przetarg na mieszkanie

Kraków, Zwierzyniec, Królowej Jadwigi

...odbędzie się w dniu 31 października 2025 roku (piątek) o godz. 12:30 w budynku Urzędu Miasta w Nowym Targu przy ul. Krzywej 1, sala nr 020, parter.
*** Osoby zamierzające uczestniczyć w przetargu, przed przystąpieniem do niego wpłacają wadium w pieniądzu w wysokości 44 000,00 zł (słownie: czterdzieści cztery tysiące złotych 00/100). Wpłata winna znaleźć się na koncie Urzędu Miasta w Nowym Targu w Banku Pekao S.A. I Oddział w Nowym Targu nr: 45 1240 1574 1111 0010 2422 2171 najpóźniej w dni...
Szczegóły przetargu

Cena wywoławcza:

440 000 zł

18 565 zł/m2

24 m2

Termin: 2025-10-31

Organizator przetargu:
Urząd Miasta Nowy Targ
Przetarg na mieszkanie

Kraków, Zwierzyniec, Królowej Jadwigi

Cena wywoławcza:

440 000 zł

18 565 zł/m2

24 m2

...odbędzie się w dniu 31 października 2025 roku (piątek) o godz. 12:30 w budynku Urzędu Miasta w Nowym Targu przy ul. Krzywej 1, sala nr 020, parter.
*** Osoby zamierzające uczestniczyć w przetargu, przed przystąpieniem do niego wpłacają wadium w pieniądzu w wysokości 44 000,00 zł (słownie: czterdzieści cztery tysiące złotych 00/100). Wpłata winna znaleźć się na koncie Urzędu Miasta w Nowym Targu w Banku Pekao S.A. I Oddział w Nowym Targu nr: 45 1240 1574 1111 0010 2422 2171 najpóźniej w dni...
Szczegóły przetargu

Termin: 2025-10-31

Organizator przetargu:
Urząd Miasta Nowy Targ
Przetarg na mieszkanie

Kraków, Krowodrza, Kazimierza Wielkiego

...odbędzie się w dniu 30 października 2025 roku (czwartek) o godz. 13:00 w budynku Urzędu Miasta w Nowym Targu przy ul. Krzywej 1, sala nr 020, parter.
*** Osoby zamierzające uczestniczyć w przetargu, przed przystąpieniem do niego wpłacają wadium w pieniądzu w wysokości 92 000,00 zł (słownie: dziewięćdziesiąt dwa tysiące złotych 00/100). Wpłata winna znaleźć się na koncie Urzędu Miasta w Nowym Targu w Banku Pekao S.A. I Oddział w Nowym Targu nr: 45 1240 1574 1111 0010 2422 2171 najpóźniej w ...
Szczegóły przetargu

Cena wywoławcza:

920 000 zł

15 333 zł/m2

60 m2

Termin: 2025-10-30

Organizator przetargu:
Urząd Miasta Nowy Targ
Przetarg na mieszkanie

Kraków, Krowodrza, Kazimierza Wielkiego

Cena wywoławcza:

920 000 zł

15 333 zł/m2

60 m2

...odbędzie się w dniu 30 października 2025 roku (czwartek) o godz. 13:00 w budynku Urzędu Miasta w Nowym Targu przy ul. Krzywej 1, sala nr 020, parter.
*** Osoby zamierzające uczestniczyć w przetargu, przed przystąpieniem do niego wpłacają wadium w pieniądzu w wysokości 92 000,00 zł (słownie: dziewięćdziesiąt dwa tysiące złotych 00/100). Wpłata winna znaleźć się na koncie Urzędu Miasta w Nowym Targu w Banku Pekao S.A. I Oddział w Nowym Targu nr: 45 1240 1574 1111 0010 2422 2171 najpóźniej w ...
Szczegóły przetargu

Termin: 2025-10-30

Organizator przetargu:
Urząd Miasta Nowy Targ
Przetarg na mieszkanie

Kraków, Krowodrza, al. Juliusza Słowackiego

...odbędzie się w dniu 30 października 2025 roku (czwartek) o godz. 10:00 w budynku Urzędu Miasta w Nowym Targu przy ul. Krzywej 1, sala nr 020, parter.
*** Osoby zamierzające uczestniczyć w przetargu, przed przystąpieniem do niego wpłacają wadium w pieniądzu w wysokości 81 000,00 zł (słownie: osiemdziesiąt jeden tysięcy złotych 00/100). Wpłata winna znaleźć się na koncie Urzędu Miasta w Nowym Targu w Banku Pekao S.A. I Oddział w Nowym Targu nr: 45 1240 1574 1111 0010 2422 2171 najpóźniej w d...
Szczegóły przetargu

Cena wywoławcza:

810 000 zł

16 691 zł/m2

49 m2

Termin: 2025-10-30

Organizator przetargu:
Urząd Miasta Nowy Targ
Przetarg na mieszkanie

Kraków, Krowodrza, al. Juliusza Słowackiego

Cena wywoławcza:

810 000 zł

16 691 zł/m2

49 m2

...odbędzie się w dniu 30 października 2025 roku (czwartek) o godz. 10:00 w budynku Urzędu Miasta w Nowym Targu przy ul. Krzywej 1, sala nr 020, parter.
*** Osoby zamierzające uczestniczyć w przetargu, przed przystąpieniem do niego wpłacają wadium w pieniądzu w wysokości 81 000,00 zł (słownie: osiemdziesiąt jeden tysięcy złotych 00/100). Wpłata winna znaleźć się na koncie Urzędu Miasta w Nowym Targu w Banku Pekao S.A. I Oddział w Nowym Targu nr: 45 1240 1574 1111 0010 2422 2171 najpóźniej w d...
Szczegóły przetargu

Termin: 2025-10-30

Organizator przetargu:
Urząd Miasta Nowy Targ
Przetarg na mieszkanie

Kraków, Stare Miasto, Św. Sebastiana

...odbędzie się w dniu 29 października 2025 roku (środa) o godz. 10:00 w budynku Urzędu Miasta w Nowym Targu przy ul. Krzywej 1, sala nr 020, parter.
*** Osoby zamierzające uczestniczyć w przetargu, przed przystąpieniem do niego wpłacają wadium w pieniądzu w wysokości 95 000,00 zł (słownie: dziewięćdziesiąt pięć tysięcy złotych 00/100). Wpłata winna znaleźć się na koncie Urzędu Miasta w Nowym Targu w Banku Pekao S.A. I Oddział w Nowym Targu nr: 45 1240 1574 1111 0010 2422 2171 najpóźniej w dn...
Szczegóły przetargu

Cena wywoławcza:

950 000 zł

18 602 zł/m2

51 m2

Termin: 2025-10-29

Organizator przetargu:
Urząd Miasta Nowy Targ
Przetarg na mieszkanie

Kraków, Stare Miasto, Św. Sebastiana

Cena wywoławcza:

950 000 zł

18 602 zł/m2

51 m2

...odbędzie się w dniu 29 października 2025 roku (środa) o godz. 10:00 w budynku Urzędu Miasta w Nowym Targu przy ul. Krzywej 1, sala nr 020, parter.
*** Osoby zamierzające uczestniczyć w przetargu, przed przystąpieniem do niego wpłacają wadium w pieniądzu w wysokości 95 000,00 zł (słownie: dziewięćdziesiąt pięć tysięcy złotych 00/100). Wpłata winna znaleźć się na koncie Urzędu Miasta w Nowym Targu w Banku Pekao S.A. I Oddział w Nowym Targu nr: 45 1240 1574 1111 0010 2422 2171 najpóźniej w dn...
Szczegóły przetargu

Termin: 2025-10-29

Organizator przetargu:
Urząd Miasta Nowy Targ
Przetarg na mieszkanie

Kraków, Stare Miasto, Św. Józefa Dietla

...odbędzie się w dniu 29 października 2025 roku (środa) o godz. 13:00 w budynku Urzędu Miasta w Nowym Targu przy ul. Krzywej 1, sala nr 020, parter.
*** Osoby zamierzające uczestniczyć w przetargu, przed przystąpieniem do niego wpłacają wadium w pieniądzu w wysokości 72 000,00 zł (słownie: siedemdziesiąt dwa tysiące złotych 00/100). Wpłata winna znaleźć się na koncie Urzędu Miasta w Nowym Targu w Banku Pekao S.A. I Oddział w Nowym Targu nr: 45 1240 1574 1111 0010 2422 2171 najpóźniej w dniu ...
Szczegóły przetargu

Cena wywoławcza:

720 000 zł

16 826 zł/m2

43 m2

Termin: 2025-10-29

Organizator przetargu:
Urząd Miasta Nowy Targ
Przetarg na mieszkanie

Kraków, Stare Miasto, Św. Józefa Dietla

Cena wywoławcza:

720 000 zł

16 826 zł/m2

43 m2

...odbędzie się w dniu 29 października 2025 roku (środa) o godz. 13:00 w budynku Urzędu Miasta w Nowym Targu przy ul. Krzywej 1, sala nr 020, parter.
*** Osoby zamierzające uczestniczyć w przetargu, przed przystąpieniem do niego wpłacają wadium w pieniądzu w wysokości 72 000,00 zł (słownie: siedemdziesiąt dwa tysiące złotych 00/100). Wpłata winna znaleźć się na koncie Urzędu Miasta w Nowym Targu w Banku Pekao S.A. I Oddział w Nowym Targu nr: 45 1240 1574 1111 0010 2422 2171 najpóźniej w dniu ...
Szczegóły przetargu

Termin: 2025-10-29

Organizator przetargu:
Urząd Miasta Nowy Targ
Przetarg na mieszkanie

Kraków, Krowodrza, Radzikowskiego

OFERTA SPRZEDAŻY LOKALU

Syndyk Masy Upadłości *** w postępowaniu upadłościowym o sygn. akt KR1S/GUp/42/2025 informuje o sprzedaży z wolnej ręki składnika wchodzącego w skład masy upadłości w postaci:

1) prawo własności lokalu mieszkalnego, jednopoziomowego, położonego na II piętrze, o powierzchni 38,28 m2, składającego się z przedpokoju, pokoju dziennego z aneksem, sypialni, łazienki z WC, oznaczone nr ***, położone przy ul. Radzikowskiego ***w Krakowie, dla którego prowadzona jest księga ...
Szczegóły przetargu

Cena wywoławcza:

622 000 zł

16 368 zł/m2

38 m2 2 pokoje

Termin: 2025-10-22

Organizator przetargu:
Syndyk
Przetarg na mieszkanie

Kraków, Krowodrza, Radzikowskiego

Cena wywoławcza:

622 000 zł

16 368 zł/m2

38 m2 2 pokoje

OFERTA SPRZEDAŻY LOKALU

Syndyk Masy Upadłości *** w postępowaniu upadłościowym o sygn. akt KR1S/GUp/42/2025 informuje o sprzedaży z wolnej ręki składnika wchodzącego w skład masy upadłości w postaci:

1) prawo własności lokalu mieszkalnego, jednopoziomowego, położonego na II piętrze, o powierzchni 38,28 m2, składającego się z przedpokoju, pokoju dziennego z aneksem, sypialni, łazienki z WC, oznaczone nr ***, położone przy ul. Radzikowskiego ***w Krakowie, dla którego prowadzona jest księga ...
Szczegóły przetargu

Termin: 2025-10-22

Organizator przetargu:
Syndyk
Przetarg na mieszkanie

Kraków, Bieżanów-Prokocim, Telimeny

...odbędzie się dnia 21 października 2025 r. (wtorek) w Domu Kultury przy ul. Aleksandry 11 – I p.

godz.16.00 – licytacja lokalu przy ul. Telimeny 13/85

godz. 16.30- licytacja lokalu przy ul. Heleny 12/98

Termin wpłaty wylicytowanej ceny nabycia do dnia 04 listopada 2025 r.

Lokale można oglądać w dniach:

14 października 2025 r. ( wtorek) w godz. 16.00- 17.00

16 października 2025 r. ( czwartek ) w godz. 8.00- 9.00

Dodatkowe informacje można uzyskać pod nr tel. 12 307 16 12
...
Szczegóły przetargu

Cena wywoławcza:

545 545 zł

10 900 zł/m2

50 m2 2 pokoje

Termin: 2025-10-21

Organizator przetargu:
Spółdzielnia Mieszkaniowa Nowy Bieżanów
Przetarg na mieszkanie

Kraków, Bieżanów-Prokocim, Telimeny

Cena wywoławcza:

545 545 zł

10 900 zł/m2

50 m2 2 pokoje

...odbędzie się dnia 21 października 2025 r. (wtorek) w Domu Kultury przy ul. Aleksandry 11 – I p.

godz.16.00 – licytacja lokalu przy ul. Telimeny 13/85

godz. 16.30- licytacja lokalu przy ul. Heleny 12/98

Termin wpłaty wylicytowanej ceny nabycia do dnia 04 listopada 2025 r.

Lokale można oglądać w dniach:

14 października 2025 r. ( wtorek) w godz. 16.00- 17.00

16 października 2025 r. ( czwartek ) w godz. 8.00- 9.00

Dodatkowe informacje można uzyskać pod nr tel. 12 307 16 12
...
Szczegóły przetargu

Termin: 2025-10-21

Organizator przetargu:
Spółdzielnia Mieszkaniowa Nowy Bieżanów
Przetarg na mieszkanie

Kraków, Wielicka

...odbędzie się bezpośrednio po otwarciu i rozpoznaniu przez syndyka ofert pisemnych.

Syndyk zastrzega sobie prawo do odwołania konkursu w każdym momencie, bez podania przyczyny.

_Regulamin sprzedaży_ znajduje się na stronie syndyka: /ogloszenia-i- przetargi/nieruchomosci/ oraz w kancelarii syndyka.

Operaty szacunkowe dla każdego ze składników mienia będących przedmiotem sprzedaży sporządzone przez rzeczoznawcę majątkowego wpisanego na listę biegłych sądowych przy Sądzie Okręgowym w Kr...
Szczegóły przetargu

Cena wywoławcza:

1 036 200 zł

16 987 zł/m2

61 m2

Termin: 2025-10-17

Organizator przetargu:
Syndyk
Przetarg na mieszkanie

Kraków, Wielicka

Cena wywoławcza:

1 036 200 zł

16 987 zł/m2

61 m2

...odbędzie się bezpośrednio po otwarciu i rozpoznaniu przez syndyka ofert pisemnych.

Syndyk zastrzega sobie prawo do odwołania konkursu w każdym momencie, bez podania przyczyny.

_Regulamin sprzedaży_ znajduje się na stronie syndyka: /ogloszenia-i- przetargi/nieruchomosci/ oraz w kancelarii syndyka.

Operaty szacunkowe dla każdego ze składników mienia będących przedmiotem sprzedaży sporządzone przez rzeczoznawcę majątkowego wpisanego na listę biegłych sądowych przy Sądzie Okręgowym w Kr...
Szczegóły przetargu

Termin: 2025-10-17

Organizator przetargu:
Syndyk
       
- Najnowsze obwieszczenia o przetargach i licytacjach nieruchomości z ponad 1000 źródeł
- Ogłoszenia bezpośrednie i agencyjne z 52 portali nieruchomości